L´Ingla
DATOS
Ref: 98-038
Edificio L´Ingla
Dirección: Av. del Pessebre (Ver en el mapa)
Localización : Escaldes-Engordany
EQUIPO
Promotor: particulares
Arquitectura: Josep PUBILL ARMENGOL
Estructura: GET BEAL & Jordi RAMÉNTOL PUIGGALÍ DESCRIPCIÓN
Categoría: Vivienda plurifamiliar
Año inicio: 1999
Año final: 2002
Usos: aparcamiento, comercial y viviendas
Alturas estructura: -2 / +6
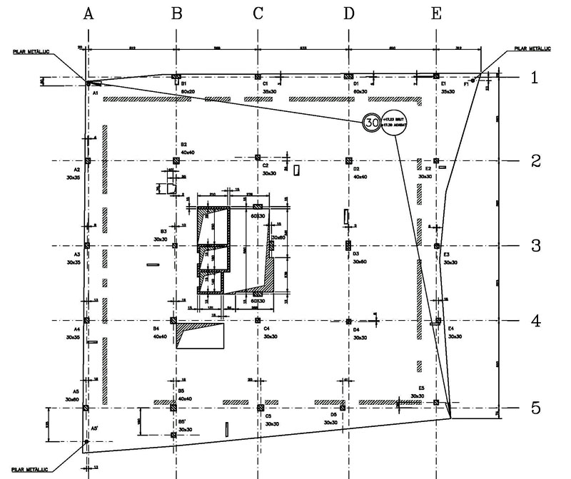
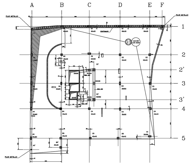
ESTRUCTURA
Superficie construida estructura: 6.275m2
Sostenimiento: pantallas ancladas de micropilotes
Cimentación: losa maciza de hormigón
Estructura: hormigón armado

