La Llacuna
DATOS
Ref: 02-079
Centro cultural La Llacuna
Dirección: C. Mossèn Cinto Verdaguer (Ver en el mapa)
Localización : Andorra la Vella
EQUIPO
Promotor: Comú d'Andorra la Vella
Arquitectura: Jordi BATLLE JORDANA
Estructura: GET BEAL DESCRIPCIÓN
Categoría: Equipamientos públicos
Año inicio: 2002
Año final: 2003
Usos: Centro cultural
Alturas estructura: -1 / +6
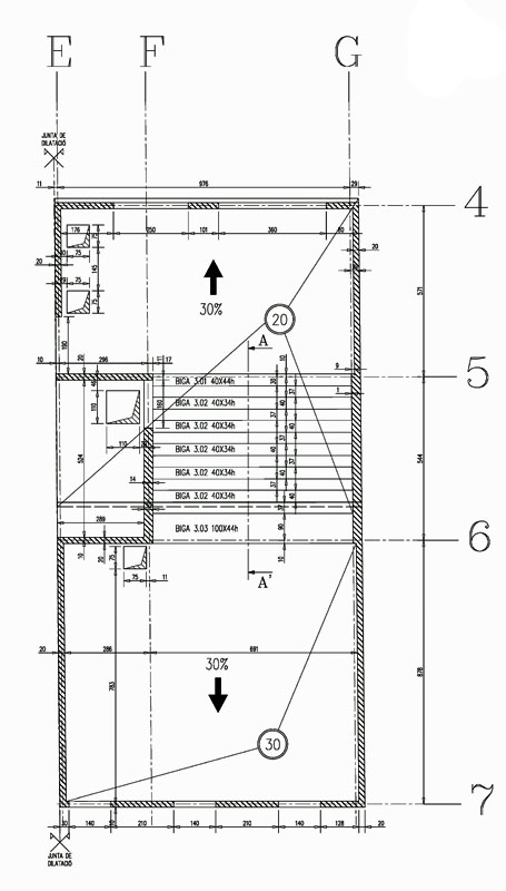
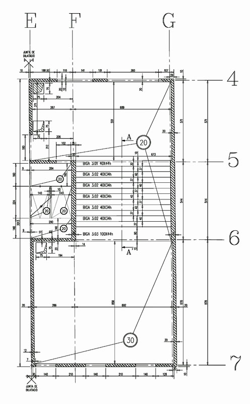
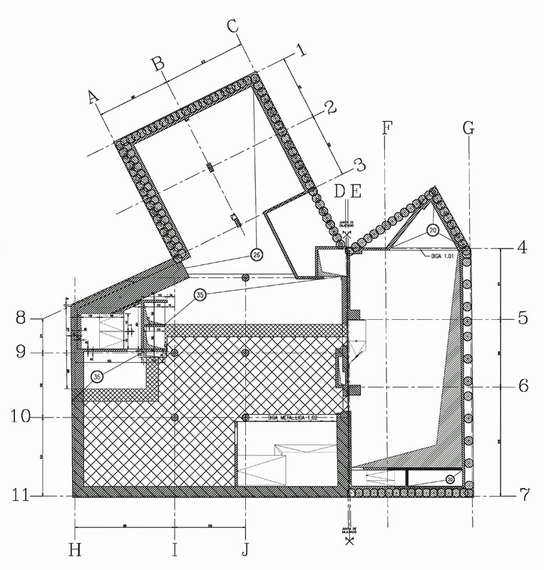
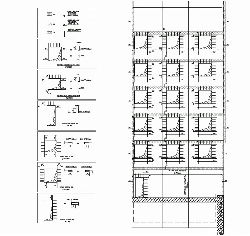
ESTRUCTURA
Superficie construida estructura: 6.164m2
Sostenimiento: pantallas simples i dobles de jet grouting
Cimentación: columnas de jet grouting
Estructura: hormigón armado y acero

