TBK
DATOS
Ref: 02-087
Residencial TBK
Dirección: Ctra. d'Engolasters (Ver en el mapa)
Localización : Escaldes-Engordany
EQUIPO
Promotor: TBK, S.L.
Arquitectura: Víctor NAUDI ZAMORA, Jordi SALA MONPEL
Estructura: GET BEAL DESCRIPCIÓN
Categoría: Vivienda plurifamiliar
Año inicio: 2002
Año final: 2004
Usos: Aparcamiento y viviendas
Alturas estructura: -3 / +5
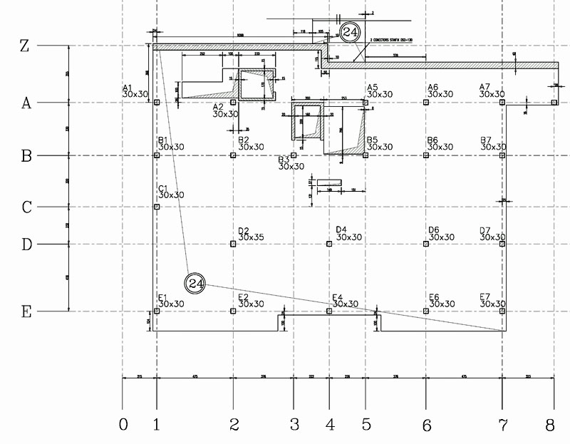
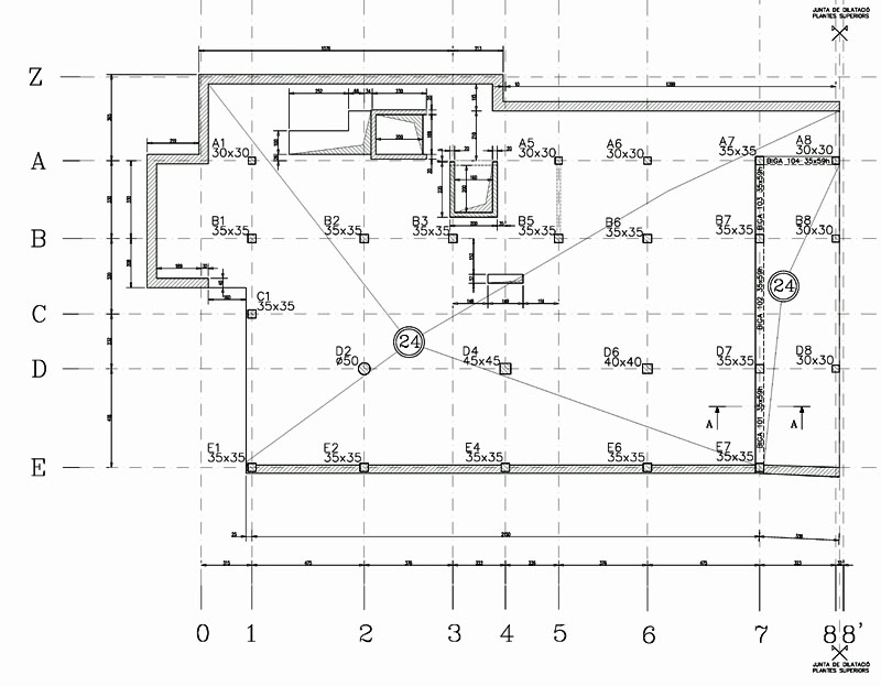
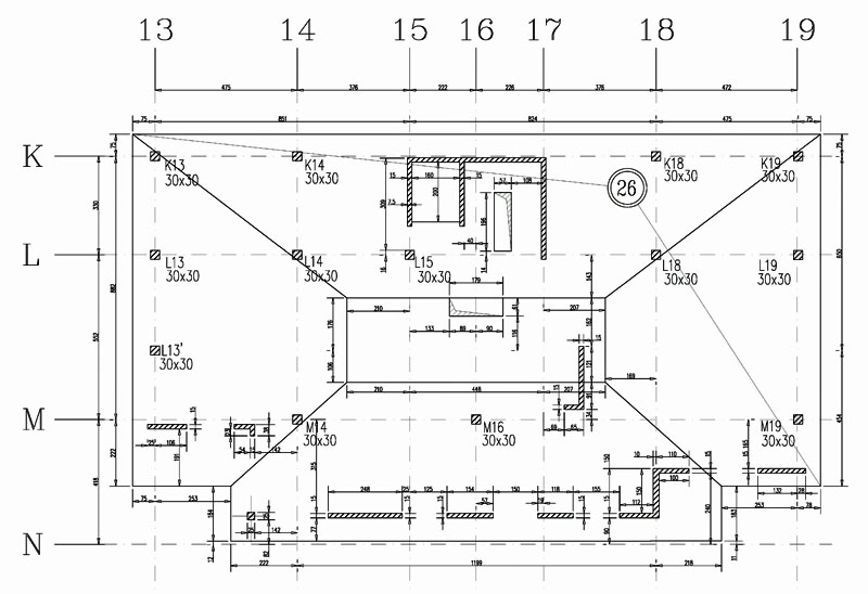
ESTRUCTURA
Superficie construida estructura: 8.890m2
Cimentación: superficial
Estructura: hormigón armado

