Prat de les Oques
DATOS
Ref: 03-117
Edificio Prat de les Oques
Dirección: Av. del Fener (Ver en el mapa)
Localización : Escaldes-Engordany
EQUIPO
Promotor: CASA MUNTANYA
Arquitectura: Pere AIXÀS ESPAR
Estructura: Yves SERRA & GET BEAL DESCRIPCIÓN
Categoría: Vivienda plurifamiliar
Año inicio: 2003
Año final: 2006
Usos: Aparcamiento, comercial, oficinas y viviendas
Alturas estructura: -3 / +7
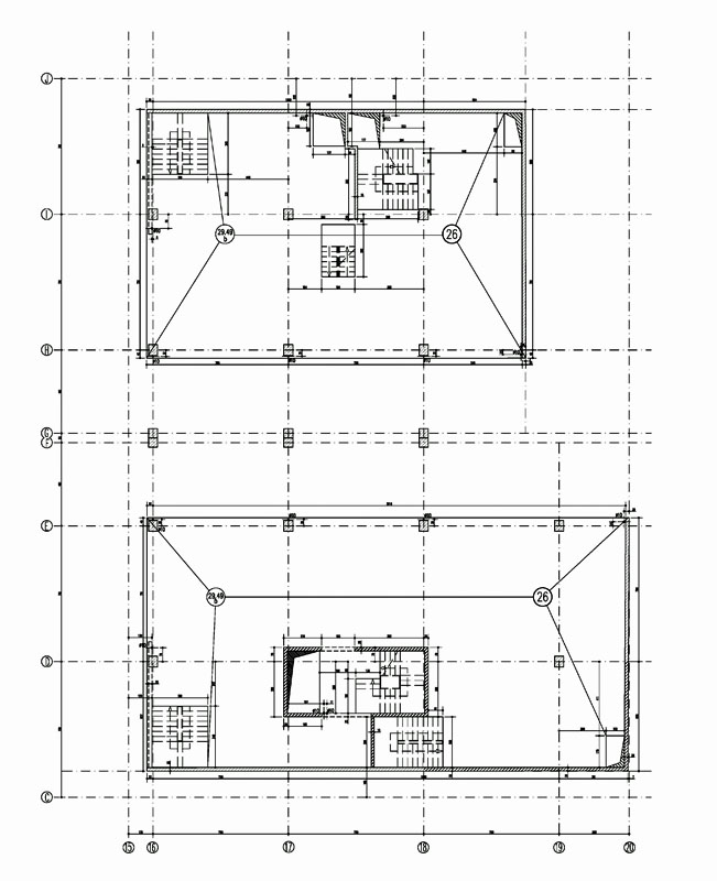
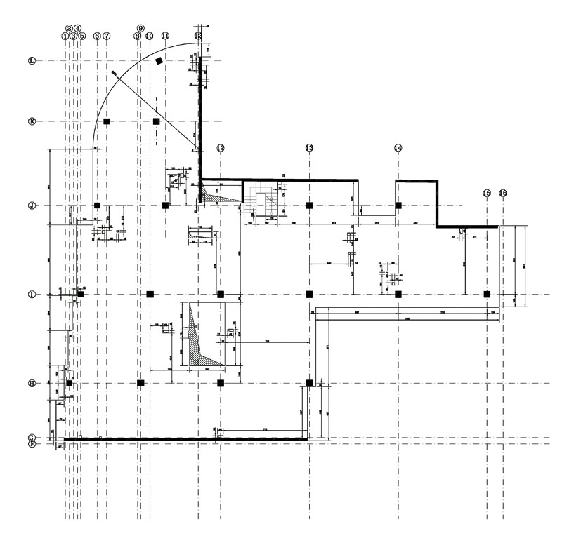
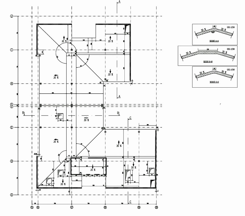
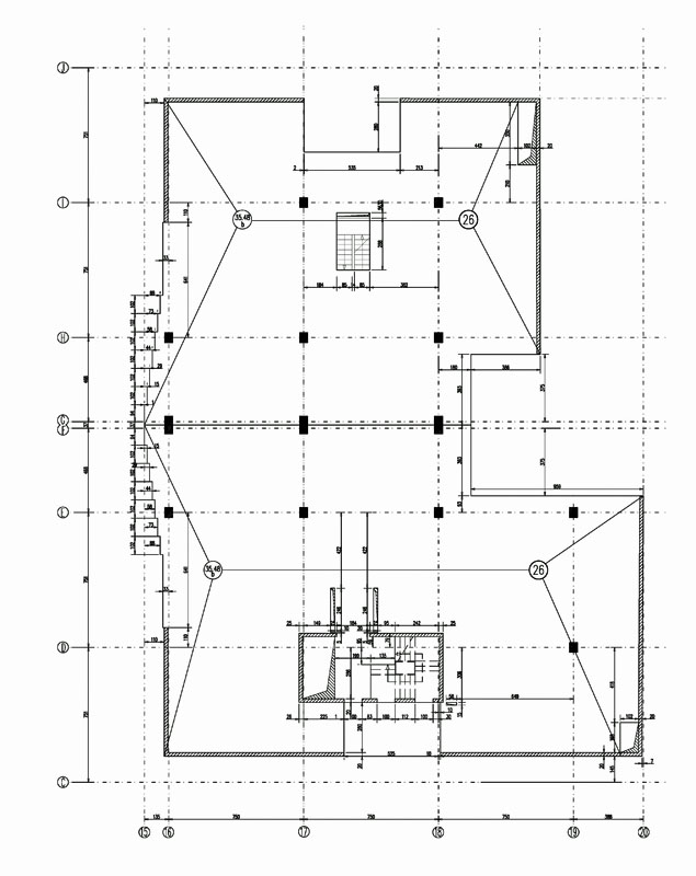
ESTRUCTURA
Superficie construida estructura: 27.455m2
Sostenimiento: pantallas ancladas de jet grouting
Cimentación: superficial
Estructura: hormigón armado

