Carlemany 121
DATOS
Ref: 03-132
Edificio av. Carlemany 121
Dirección: Av. Carlemany (Ver en el mapa)
Localización : Escaldes-Engordany
EQUIPO
Promotor: particulares
Arquitectura: Aleix DORCA BIS
Estructura: GET BEAL DESCRIPCIÓN
Categoría: Comercial
Año inicio: 2003
Año final: 2005
Usos: Comercial y oficinas
Alturas estructura: +6
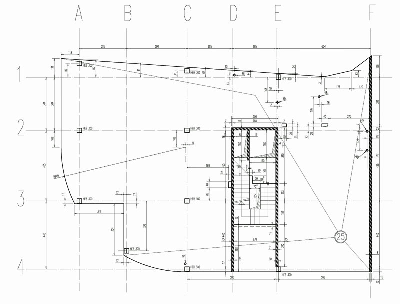
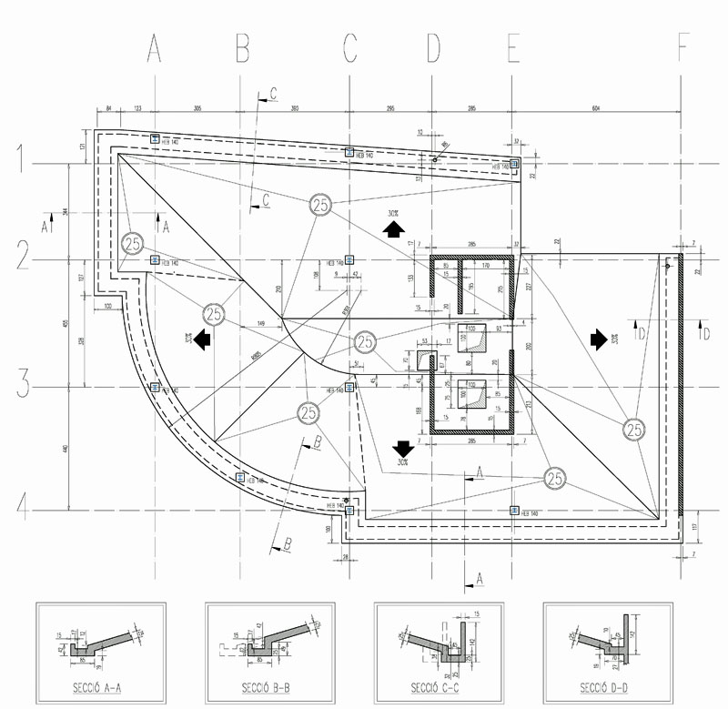
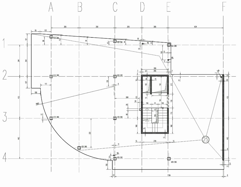
ESTRUCTURA
Superficie construida estructura: 1.735m2
Cimentación: losa maciza de hormigón
Estructura: hormigón armado, pilares de acero

