Les Massanelles
DATOS
Ref: 03-137
Edificios a Les Massanelles
Dirección: La Cortinada (Ver en el mapa)
Localización : Ordino
EQUIPO
Promotor: particulares
Arquitectura: Xavier ORTEU RIBA
Estructura: GET BEAL DESCRIPCIÓN
Categoría: Vivienda plurifamiliar
Año inicio: 2003
Año final: 2007
Usos: Aparcamientos y viviendas
Alturas estructura: -1 / +4
ESTRUCTURA
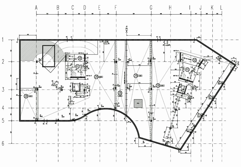
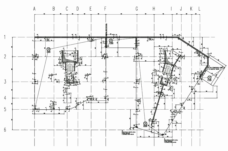
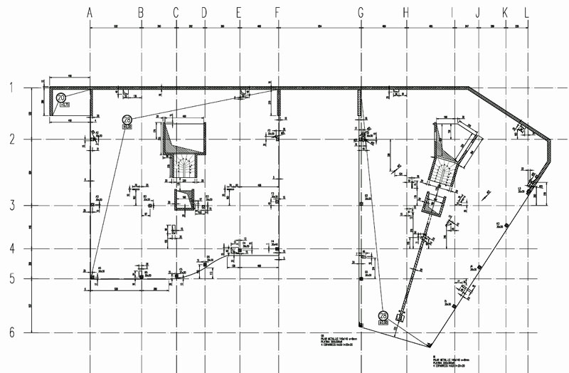
Superficie construida estructura: 5.236m2
Cimentación: superficial
Estructura: hormigón armado

