Illa 9
DATOS
Ref: 04-166
Edificio Illa 9
Dirección: Av. Esteve Albert (Ver en el mapa)
Localización : Escaldes-Engordany
EQUIPO
Promotor: CASA MUNTANYA
Arquitectura: Pere AIXÀS ESPAR
Estructura: Yves SERRA & GET BEAL DESCRIPCIÓN
Categoría: Vivienda plurifamiliar
Año inicio: 2004
Año final: 2007
Usos: Aparcamiento, comercial y viviendas
Alturas estructura: -2 / +7
ESTRUCTURA
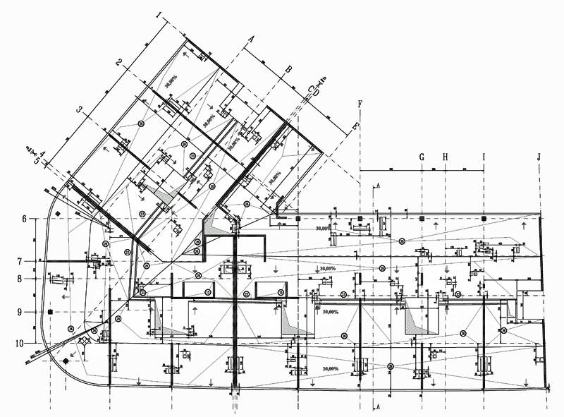
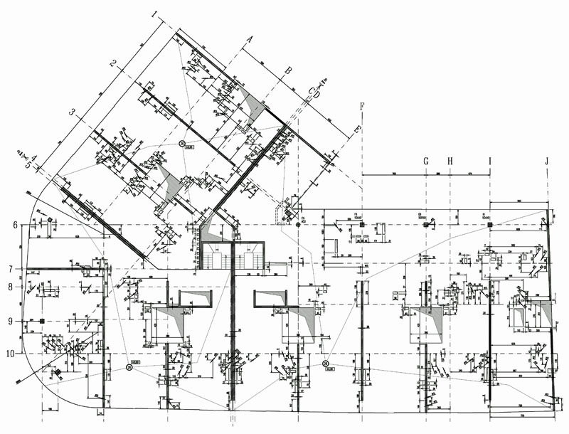
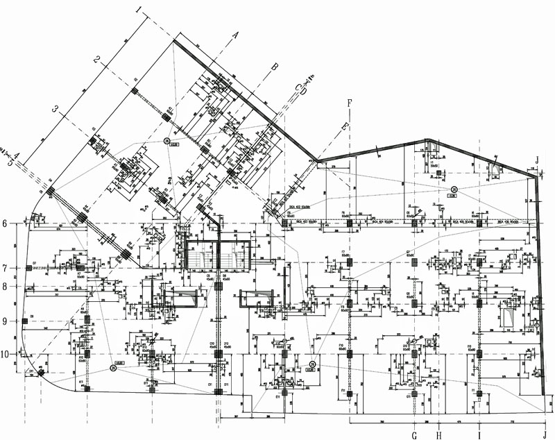
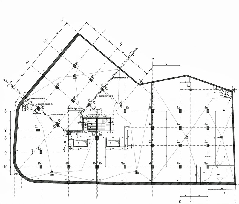
Superficie construida estructura: 18.683m2
Sostenimiento: pantallas de jet grouting
Cimentación: losa maciza de hormigón
Estructura: hormigón armado

