Centre de Congressos d´Andorra
DATOS
Ref: 05-212
Centro de Congresos i Exposiciones de Andorra
Dirección: C. del Prat de la Creu (Ver en el mapa)
Localización : Andorra la Vella
EQUIPO
Promotor: Comú d'Andorra la Vella
Arquitectura: Pere AIXÀS ESPAR
Estructura: Yves SERRA & GET BEAL DESCRIPCIÓN
Categoría: Equipamientos públicos
Año inicio: 2005
Año final: 2007
Alturas estructura: +2
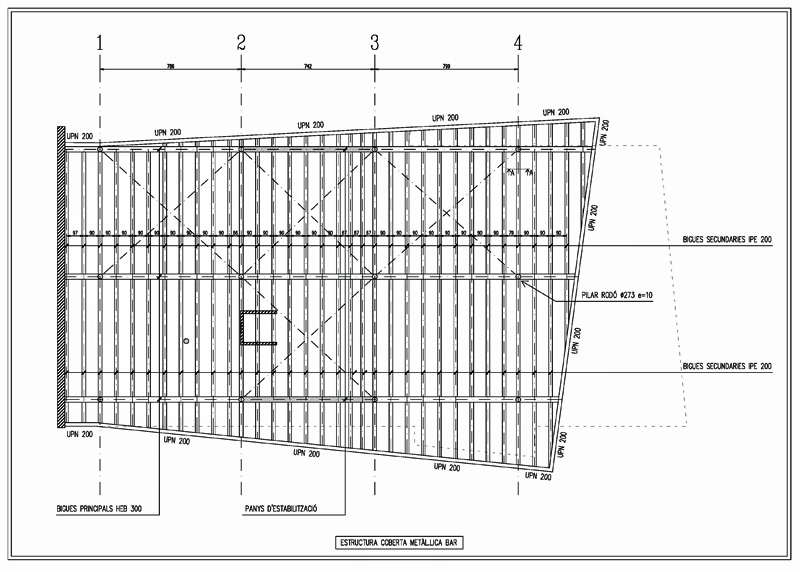
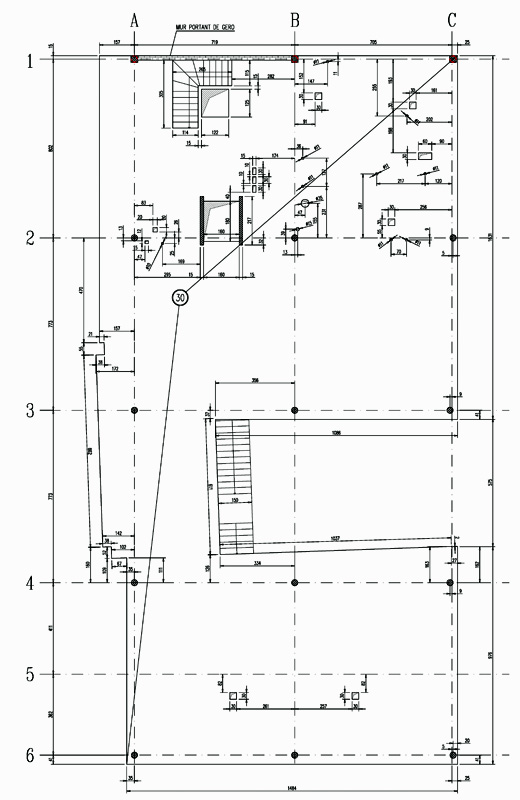
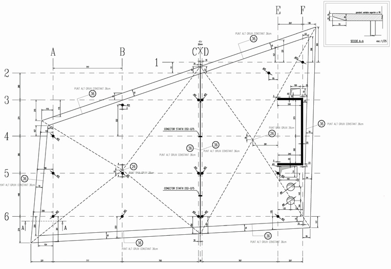
ESTRUCTURA
Superficie construida estructura: 916m2
Estructura: hormigón armado, acero

