Süissa
DATOS
Ref: 13-413
Edificio Süissa - Trillà 4
Dirección: av. Meritxell (Ver en el mapa)
Localización : Andorra la Vella
EQUIPO
Promotor: particular
Arquitectura: Xavier ORTEU RIBA
Estructura: GET BEAL DESCRIPCIÓN
Categoría: Comercial
Año inicio: 2013
Año final: 2015
Usos: Comercial, aparcamiento, oficinas y viviendas
Alturas estructura: -1 / +12
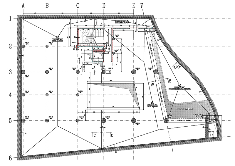
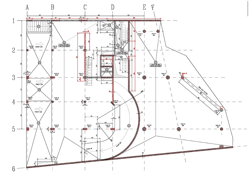
ESTRUCTURA
Superficie construida estructura: 8.457m2
Cimentación: losa maciza de hormigón
Estructura: hormigón armado

