Reforma Era i Casa Batlle
DONNÉES
Ref: 11-371
Réhabilitation Era et Casa Batlle
Adresse: La Cortinada (Voir sur la carte)
Localisation : Ordino
ÉQUIPE
Maître d´ouvrage: particulier
Architecture: Jordi VIDAL QUÍLEZ
Structure: GET BEAL DESCRIPTION
Catégorie: Hotel
Année début: 2011
Année fin: 2014
Utilisations: Logement rural
Niveaux structure: 0 / +2
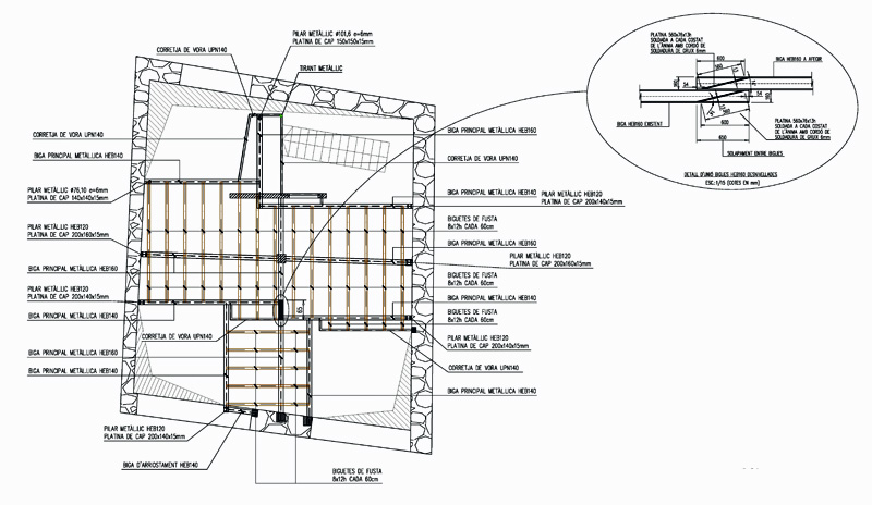
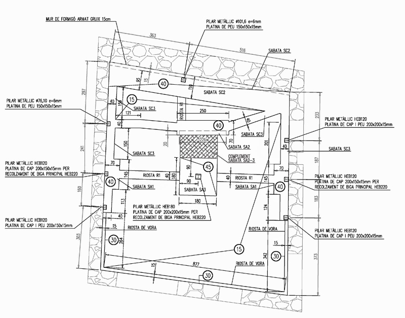
STRUCTURE
Surface construite structure: 1.053m2
Fondations: superficielles
Structure: béton armé, acier, bois

