Variant St. Julià 4
DONNÉES
Tronçon 4 de la variante de Sant Julià
Adresse: Ctra. General 1 (Voir sur la carte)
Localisation : Sant Julià de Lòria
ÉQUIPE
Maître d´ouvrage: M.I. Govern d'Andorra
Architecture:
Structure: AMATRIA (J.M. VELASCO) + GRUP SIGMA (Guillem VALDÉS+Jordi RAMÉNTOL+GET BEAL) DESCRIPTION
Catégorie: Ouvrages d´art
Année début: 2005
Année fin: 2013
Utilisations: Liaison routière
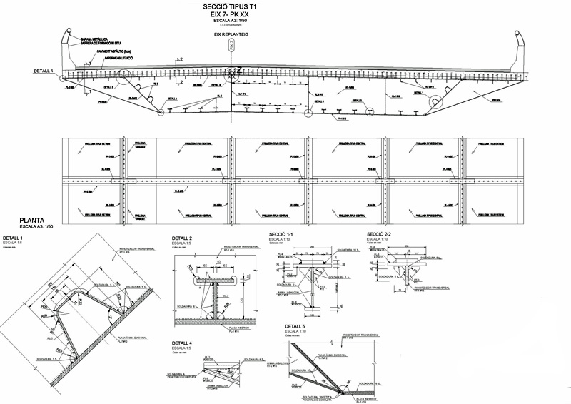
STRUCTURE
Surface construite structure: 5.713m2 de tablier
Fondations: pieux en jet grouting
Structure: piles en tubes d'acier, tablier mixte avec caisson acier et dalle en béton armé, pont en structure métallique

