Pleta Soldeu
DONNÉES
Ref: 06-229 / 06-234
3 immeubles à la Pleta de Soldeu
Adresse: Soldeu (Voir sur la carte)
Localisation : Canillo
ÉQUIPE
Maître d´ouvrage: TAL, S.A.
Architecture: Fèlix VICENTE SOLÀ
Structure: GET BEAL DESCRIPTION
Catégorie: Logement collectif
Année début: 2006
Année fin: 2008
Utilisations: Parking, logement
Niveaux structure: -2 / +6
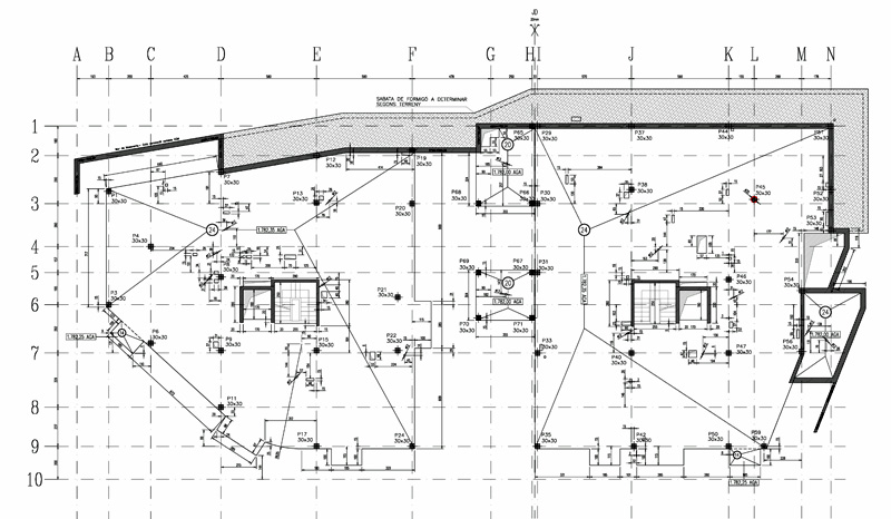
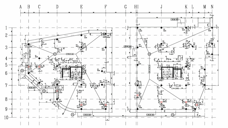
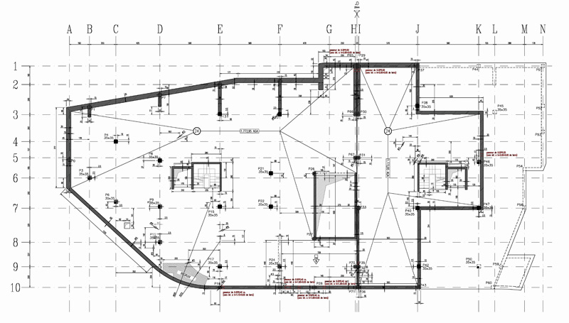
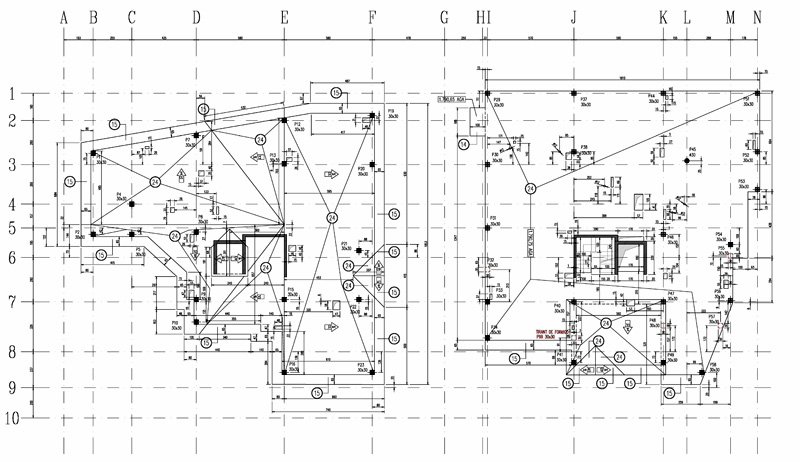
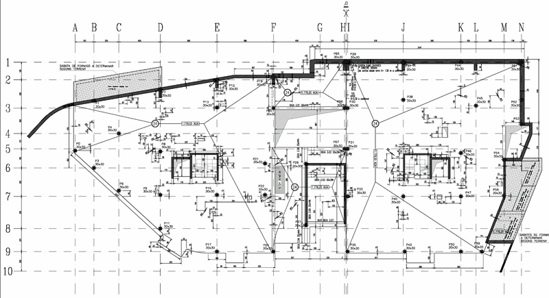
STRUCTURE
Surface construite structure: 12.902m2
Fondations: radier général en béton
Structure: béton armé

