CIAM
DADES
Ref: 10-325
Centre d'Interpretació de l'Aigua i del Madriu
Adreça: Av. Carlemany (Veure al mapa)
Localització : Escaldes-Engordany
EQUIP
Promotor: Comú d'Escaldes-Engordany
Arquitectura:
Estructura: Jordi RAMÉNTOL PUIGGALÍ & GET BEAL DESCRIPCIÓ
Categoria: Equipaments públics
Any inici: 2010
Any final: 2011
Usos: Plaça, pont, museu
Alçades estructura: 0 / +2
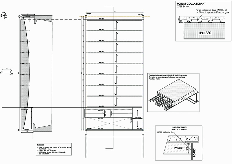
ESTRUCTURA
Superfície construida estructura: 1.021m2
Sosteniment: perns en roca
Fonaments: mixtes superficials - profunds
Estructura: acer

