Prada de Moles
DADES
Vial d'enllaç de Prada de Moles
Adreça: Prada de Moles (Veure al mapa)
Localització : Encamp
EQUIP
Promotor: Hble. Comú d'Encamp
Arquitectura:
Estructura: GRUP SIGMA (Guillem VALDÉS+Jordi RAMÉNTOL+GET BEAL) DESCRIPCIÓ
Categoria: Obra civil
Any inici: 2005
Any final: 2007
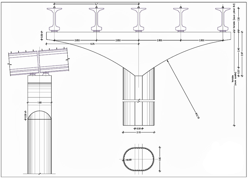
Usos: Pont viari
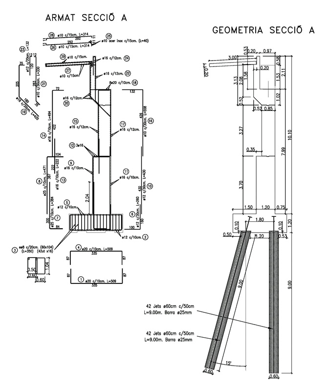
ESTRUCTURA
Superfície construida estructura: 1.335m2 (99ml)
Fonaments: columnes de jet grouting
Estructura: piles de formigó armat - tauler de bigues de formigó pretesat

