Molí 41
DADES
Ref: 02-094
Edifici Baixada del Molí - Prada Motxilla
Adreça: Baixada del Molí - Prada Motxilla (Veure al mapa)
Localització : Andorra la Vella
EQUIP
Promotor: particulars
Arquitectura: Fermí GINJAUME LAGRESA
Estructura: Yves SERRA & GET BEAL DESCRIPCIÓ
Categoria: Habitatge plurifamiliar
Any inici: 2002
Any final: 2009
Usos: Aparcament, comercial i habitatges
Alçades estructura: -3 / +9
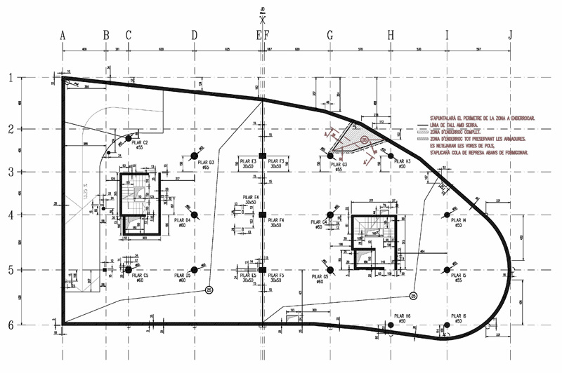
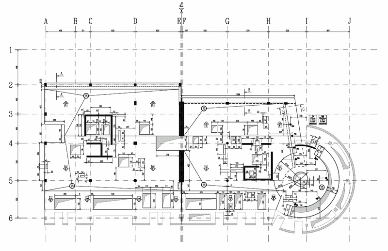
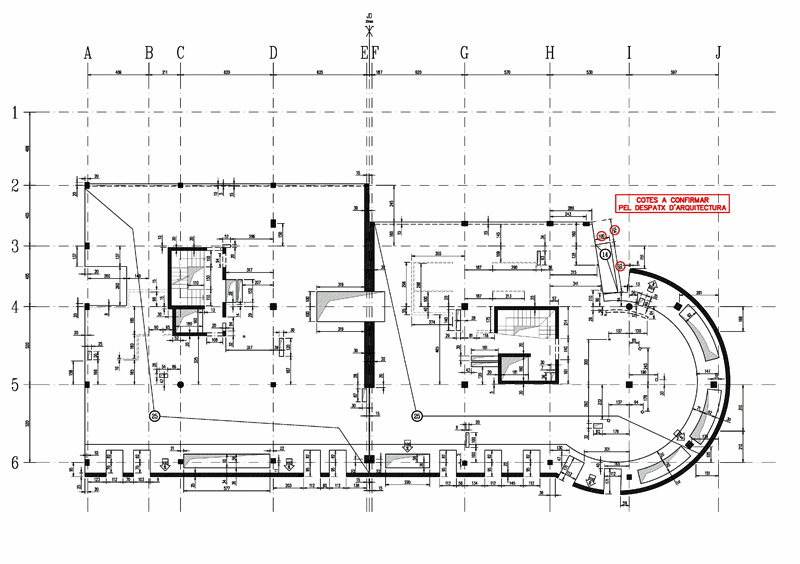
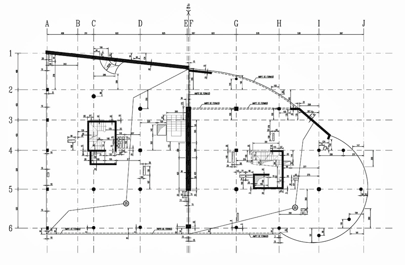
ESTRUCTURA
Superfície construida estructura: 9.568m2
Sosteniment: pantalles ancorades de jet grouting
Fonaments: llosa massissa de formigó
Estructura: formigó armat

