Devesa d´Incles
DADES
Ref: 03-126
Edifici La Devesa d'Incles
Adreça: Ctra. General 2 (Veure al mapa)
Localització : Canillo
EQUIP
Promotor: particular
Arquitectura: Xavier ORTEU RIBA
Estructura: GET BEAL DESCRIPCIÓ
Categoria: Habitatge plurifamiliar
Any inici: 2003
Any final: 2006
Usos: Aparcament, habitatges
Alçades estructura: -2 / +5
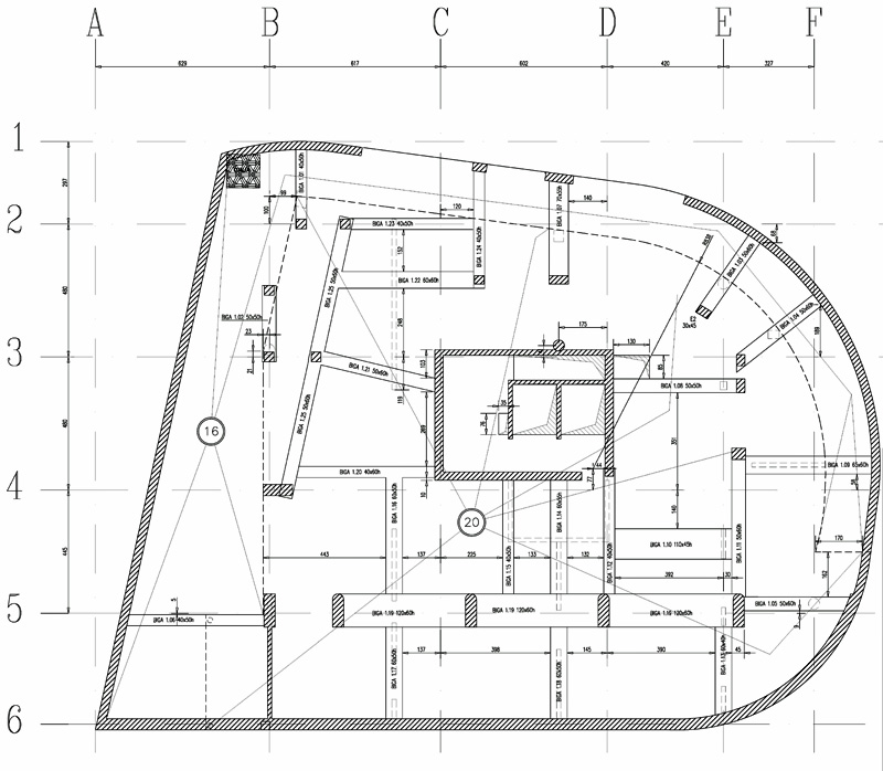
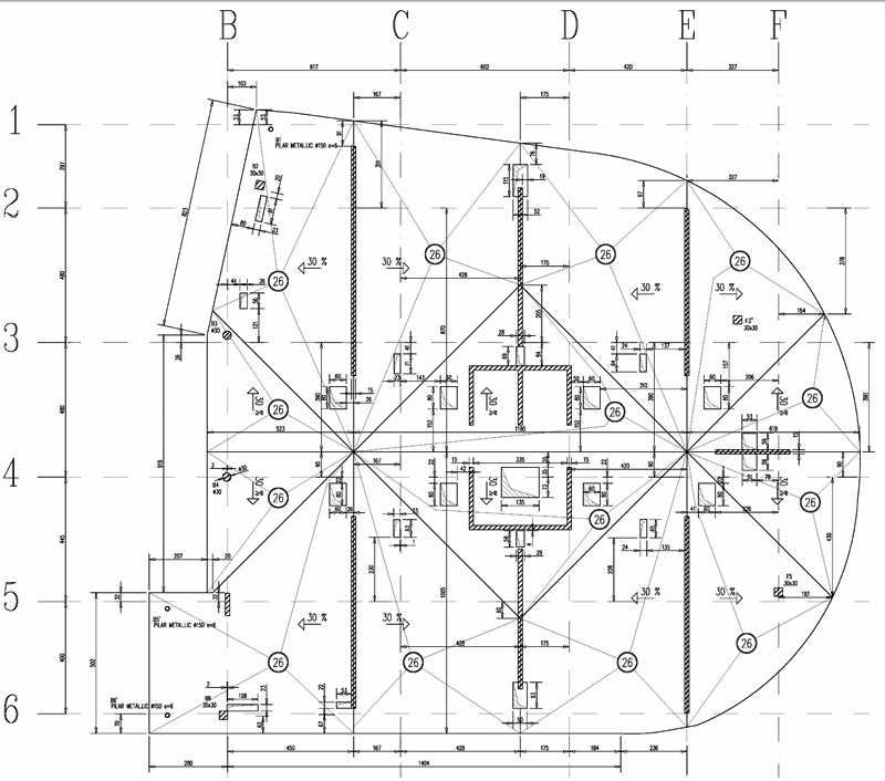
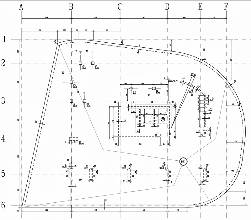
ESTRUCTURA
Superfície construida estructura: 3.591m2
Sosteniment: pantalles ancorades de micropilots
Fonaments: llosa massissa de formigó
Estructura: formigó armat

