Hotel Màgic Canillo
DADES
Ref: 01-082
Adreça: Forn de Canillo (Veure al mapa)
Localització : Canillo
EQUIP
Promotor: RAL, S.A.
Arquitectura: Josep ADSERÀ GRIFÉ, Elisabet FAURA PAVIA
Estructura: GET BEAL DESCRIPCIÓ
Categoria: Hotel
Any inici: 2001
Any final: 2003
Usos: Hotel
Alçades estructura: -7 / +2
ESTRUCTURA
Superfície construida estructura: 6.296m2
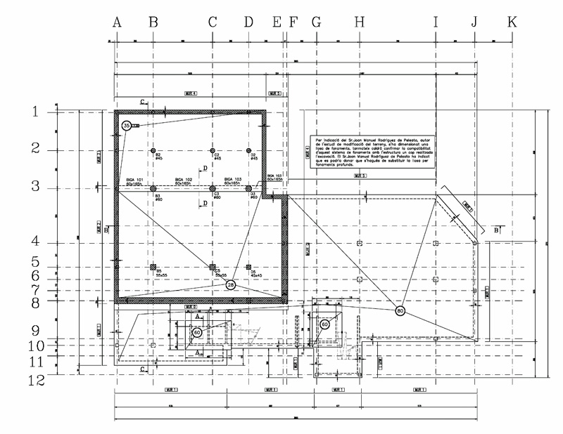
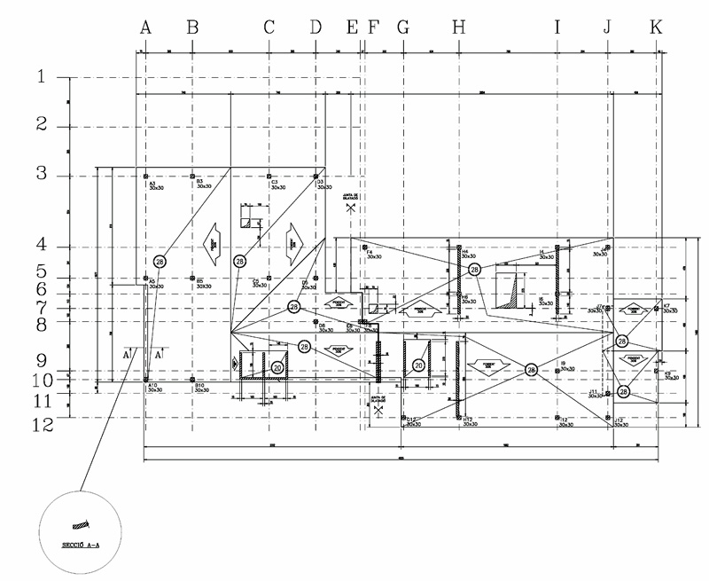
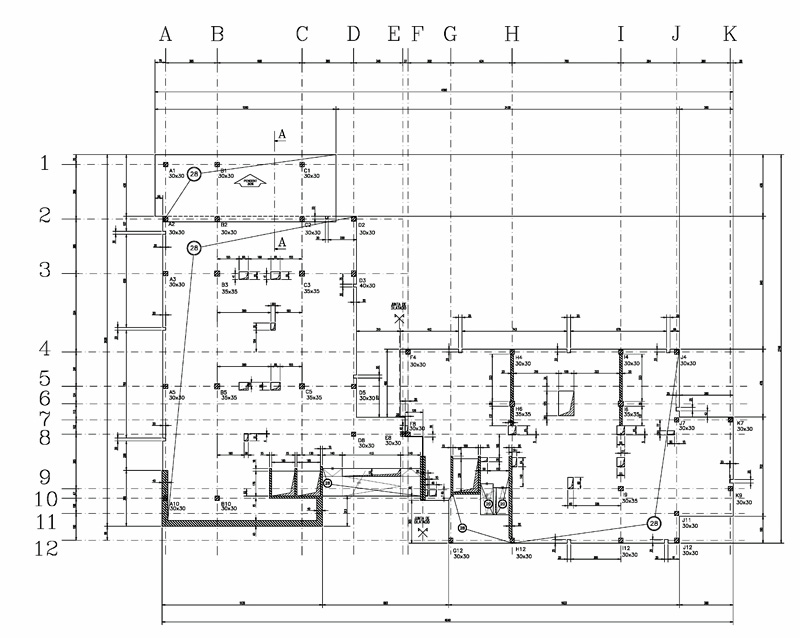
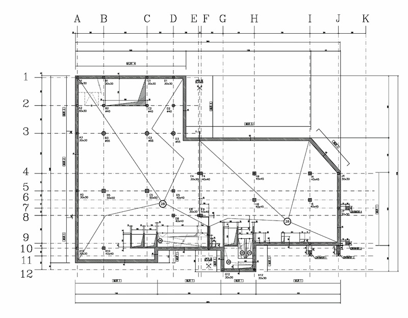
Fonaments: llosa massissa de formigó
Estructura: formigó armat

