Xalet urb. E. Serra #1
DADES
Ref: 99-052
Xalet #1 a l'urbanització E. Serra
Adreça: Urb. E. Serra (Veure al mapa)
Localització : Escaldes-Engordany
EQUIP
Promotor: particular
Arquitectura: Joan COLL CAPÓ
Estructura: GET BEAL DESCRIPCIÓ
Categoria: Habitatge unifamiliar
Any inici: 1999
Any final: 2001
Usos: Habitatge
Alçades estructura: -1 / +3
ESTRUCTURA
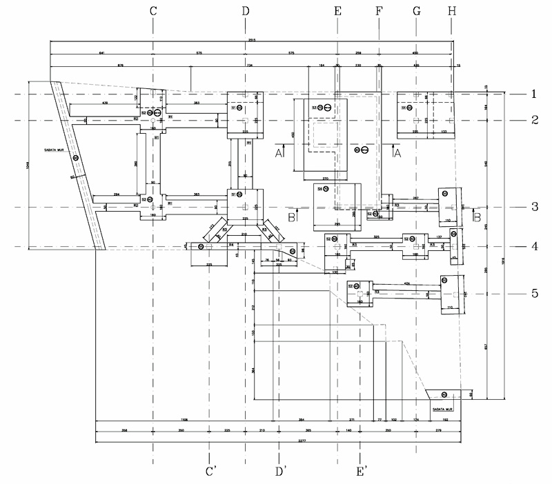
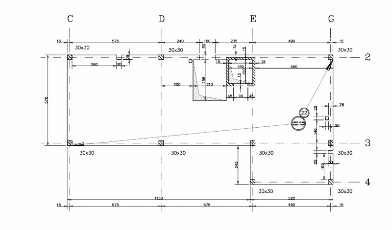
Superfície construida estructura: 826m2
Fonaments: superficials
Estructura: formigó armat

