Prat de Carlí
DADES
Ref: 03-142
Conjunt residencial Prat de Carlí
Adreça: Ctra. de Prats (Veure al mapa)
Localització : Canillo
EQUIP
Promotor: particulars
Arquitectura: Josep ADSERÀ GRIFÉ
Estructura: GET BEAL DESCRIPCIÓ
Categoria: Habitatge plurifamiliar
Any inici: 2003
Any final: 2006
Usos: Aparcament, habitatges
Alçades estructura: -1 / +5
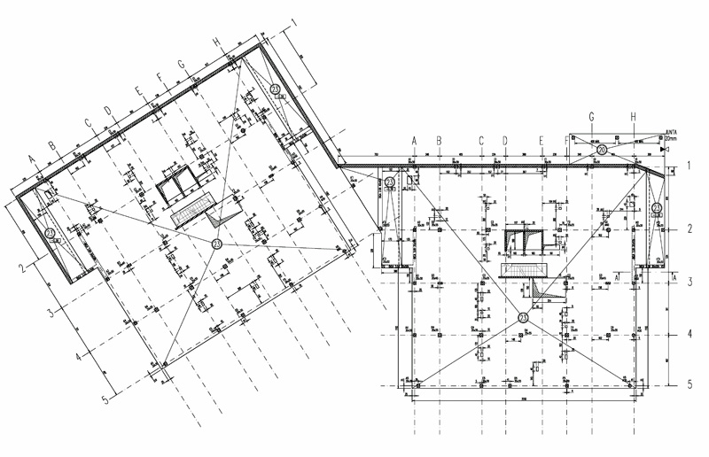
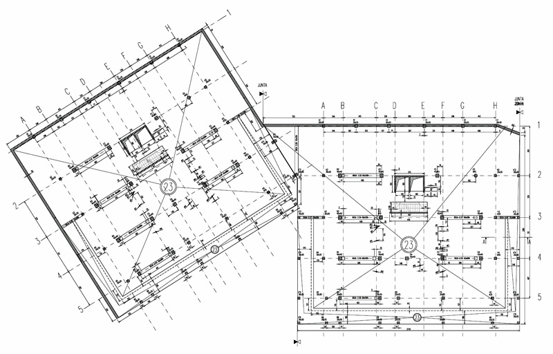
ESTRUCTURA
Superfície construida estructura: 12.965m2
Sosteniment: mur ancorat de formigó armat executat per trams
Fonaments: llosa massissa de formigó
Estructura: formigó armat

