Coloma 14
DADES
Ref: 09-321
Edifici av. Sta. Coloma, 14
Adreça: Av. Sta. Coloma, 14 (Veure al mapa)
Localització : Andorra la Vella
EQUIP
Promotor: particular
Arquitectura: ARID arquitectura
Estructura: GET BEAL DESCRIPCIÓ
Categoria: Habitatge unifamiliar
Any inici: 2009
Any final: 2013
Usos: Habitatge
Alçades estructura: -1 / +3
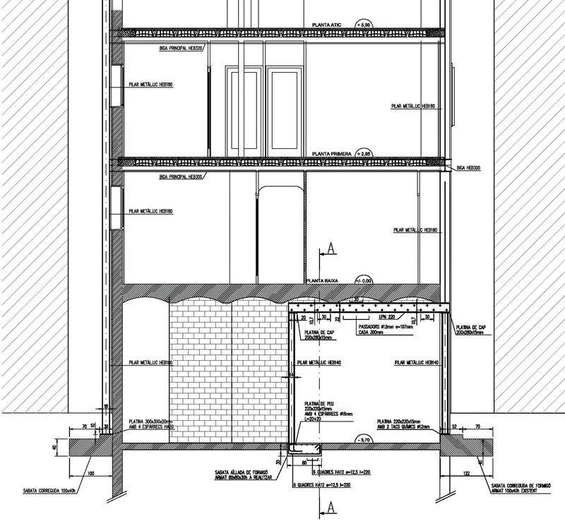
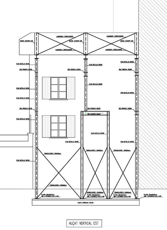
ESTRUCTURA
Superfície construida estructura: 264m2
Estructura: formigó armat, acer

