Botigues MONSA
DADES
Ref: 04-174
Adreça: c. de Sant Antoni (Veure al mapa)
Localització : Escaldes-Engordany
EQUIP
Promotor: CASA MUNTANYA
Arquitectura: Pere AIXÀS ESPAR
Estructura: Yves SERRA & GET BEAL DESCRIPCIÓ
Categoria: Comercial
Any inici: 2004
Any final: 2005
Usos: Comercial
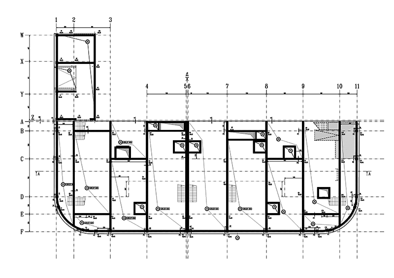
Alçades estructura: 0 / +2
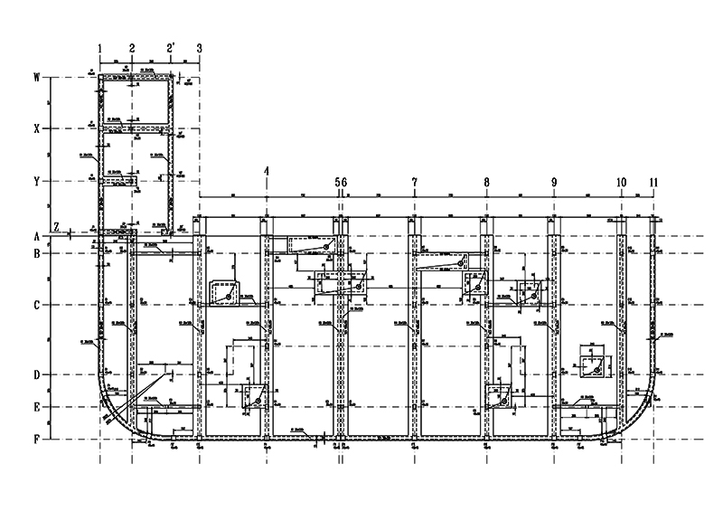
ESTRUCTURA
Superfície construida estructura: 3.615m2
Fonaments: superficials
Estructura: formigó armat

