Castell Bons
DADES
Ref: 99-033
Edifici El Castell de Les Bons
Adreça: Av. de Rouillac (Veure al mapa)
Localització : Encamp
EQUIP
Promotor: ADPIM,S.A.
Arquitectura: Joan COLL CAPÓ
Estructura: GET BEAL DESCRIPCIÓ
Categoria: Habitatge plurifamiliar
Any inici: 1999
Any final: 2002
Usos: Aparcament, comercial i habitatges
Alçades estructura: -2 / +5
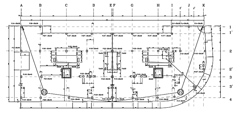
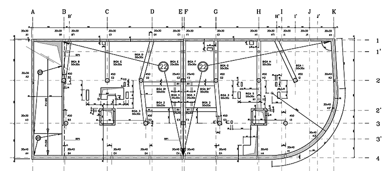
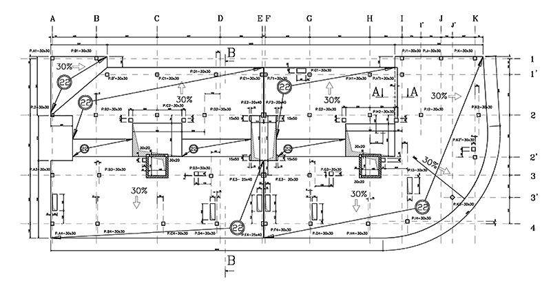
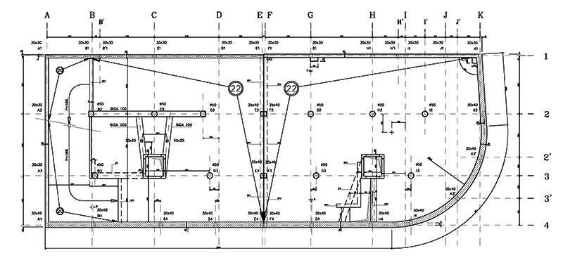
ESTRUCTURA
Superfície construida estructura: 11.264m2
Sosteniment: pantalles ancorades de micropilots
Fonaments: mixtes superficials-profunds
Estructura: formigó armat

