Reforma antic Hotel Florida
DADES
Ref: 08-287
Adreça: carrer de la llacuna (Veure al mapa)
Localització : Andorra la Vella
EQUIP
Promotor: particular
Arquitectura: Jordi VIDAL QUÍLEZ
Estructura: GET BEAL DESCRIPCIÓ
Categoria: Habitatge plurifamiliar
Any inici: 2008
Any final: 2010
Usos: Habitatge
Alçades estructura: -1 / +7
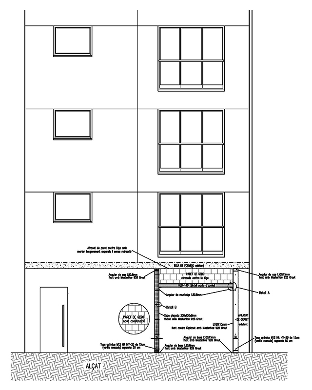
ESTRUCTURA
Estructura: formigó armat, acer

