Borda del Jaile
DADES
Ref: 98-017/024/025/032 99-048 00-060 02-106/108 06-240
Conjunt Residencial i Passarel·la de la Borda del Jaile
Adreça: Aixovall (Veure al mapa)
Localització : Sant Julià de Lòria
EQUIP
Promotor: SOLITER, S.L.
Arquitectura: Josep PUBILL ARMENGOL
Estructura: GET BEAL DESCRIPCIÓ
Categoria: Habitatge plurifamiliar
Any inici: 1998
Any final: 2011
Usos: Aparcament i habitatges
Alçades estructura: -2 / +7
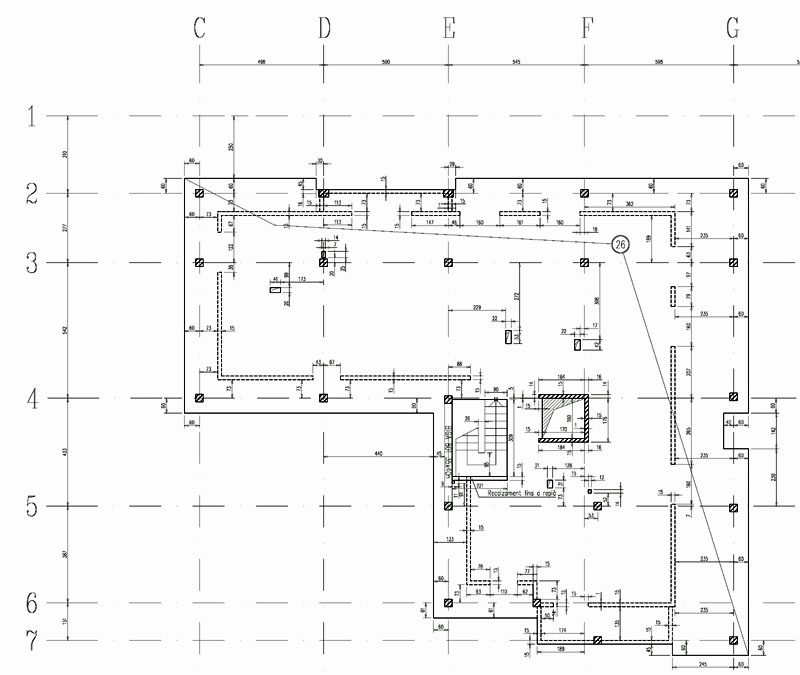
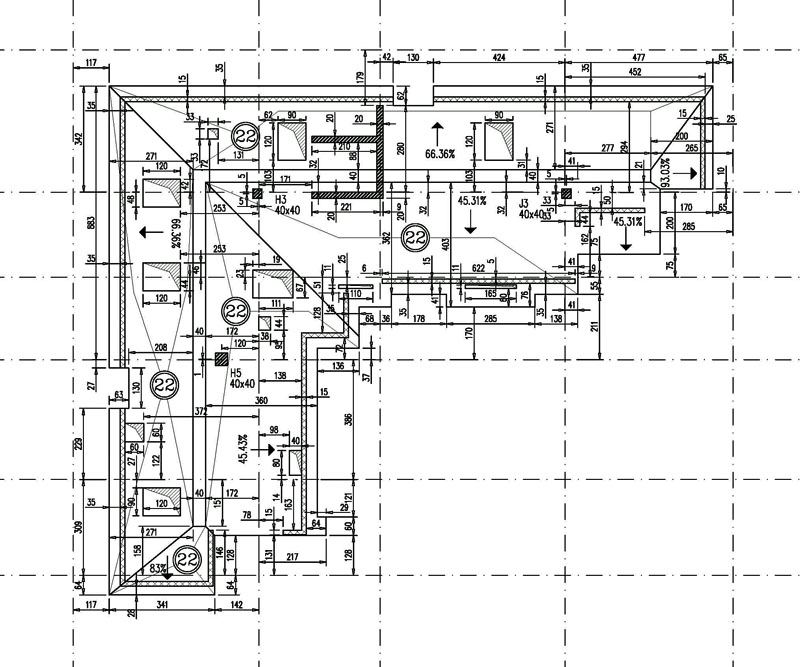
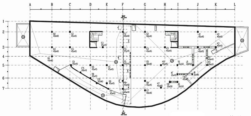
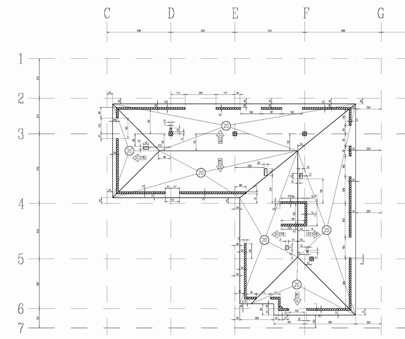
ESTRUCTURA
Superfície construida estructura: 28.941m2
Fonaments: llosa massissa de formigó
Estructura: formigó armat

