Arthotel
DADES
Ref: 00-055
Adreça: C. Prat de la Creu (Veure al mapa)
Localització : Andorra la Vella
EQUIP
Promotor: societat DURICH-CERQUEDA
Arquitectura: Elisabet FAURA PAVIA, Fermí GINJAUME LAGRESA
Estructura: Yves SERRA & GET BEAL DESCRIPCIÓ
Categoria: Hotel
Any inici: 2000
Any final: 2002
Usos: Aparcament, comercial i hotel
Alçades estructura: -2 / +6
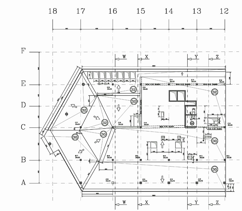
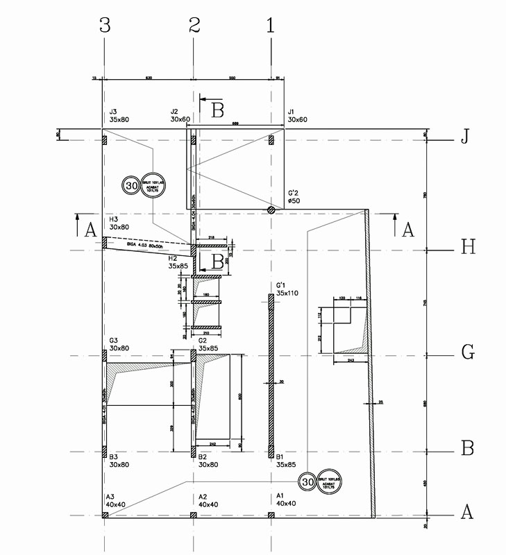
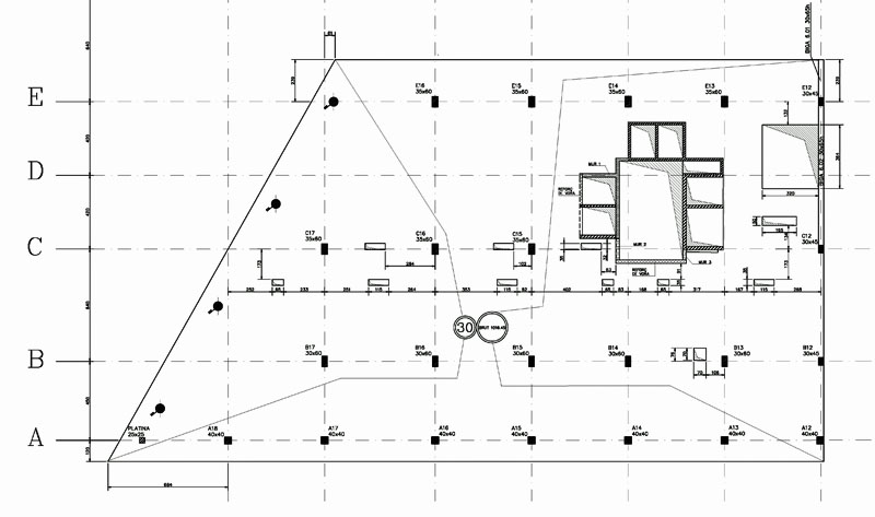
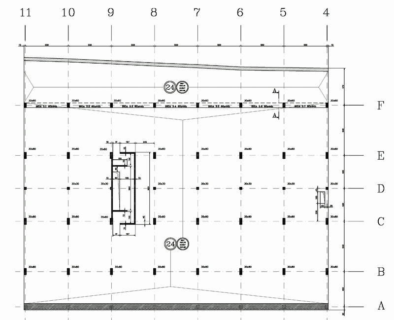
ESTRUCTURA
Superfície construida estructura: 21.379m2
Sosteniment: pantalles de jet grouting
Fonaments: llosa massissa de formigó
Estructura: formigó armat

