Nexus
DADES
Ref: 00-065
Edifici Nexus - Seu central d'Andorra Telecom
Adreça: C. Mn. Lluís Pujol (Veure al mapa)
Localització : Andorra la Vella
EQUIP
Promotor: ANDORRA TELECOM
Arquitectura: Jordi BATLLE JORDANA
Estructura: Yves SERRA & GET BEAL DESCRIPCIÓ
Categoria: Equipaments públics
Any inici: 2000
Any final: 2004
Usos: Aparcament i oficines
Alçades estructura: -4 / +8
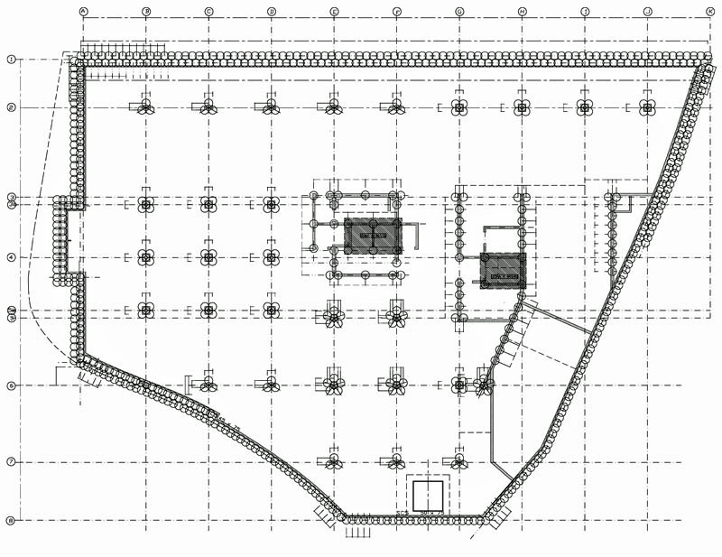
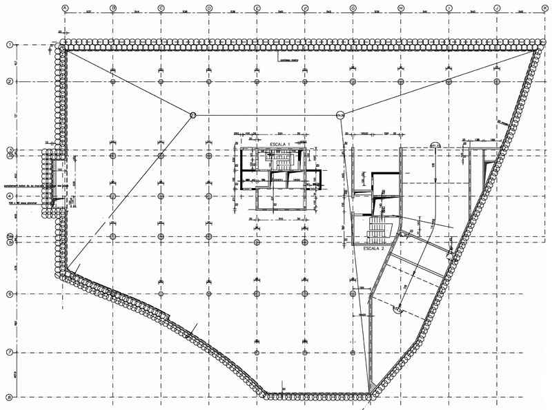
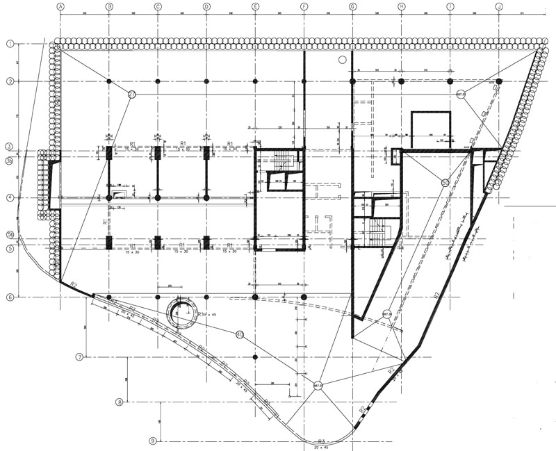
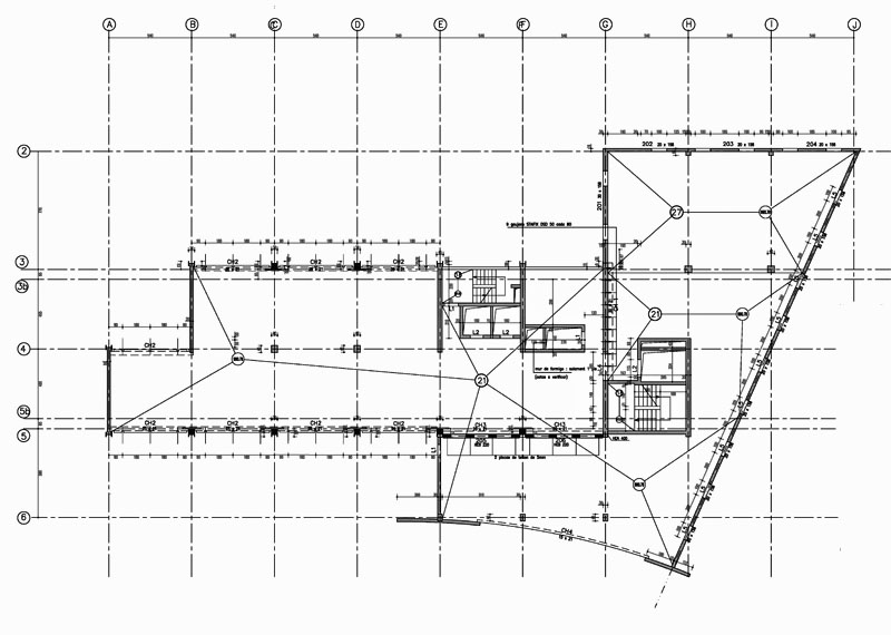
ESTRUCTURA
Superfície construida estructura: 14.335m2
Sosteniment: pantalles ancorades de jet grouting
Fonaments: llosa massissa de formigó
Estructura: formigó armat i pilars d'acer

