Estornassecs
DADES
Ref: 03-150
4 xalets als Estornassecs
Adreça: Anyós (Veure al mapa)
Localització : La Massana
EQUIP
Promotor: particular
Arquitectura: Elisabet FAURA PAVIA, Gerard VECIANA MEMBRADO
Estructura: GET BEAL DESCRIPCIÓ
Categoria: Habitatge unifamiliar
Any inici: 2003
Any final: 2008
Usos: Habitatge
Alçades estructura: -1/ +3
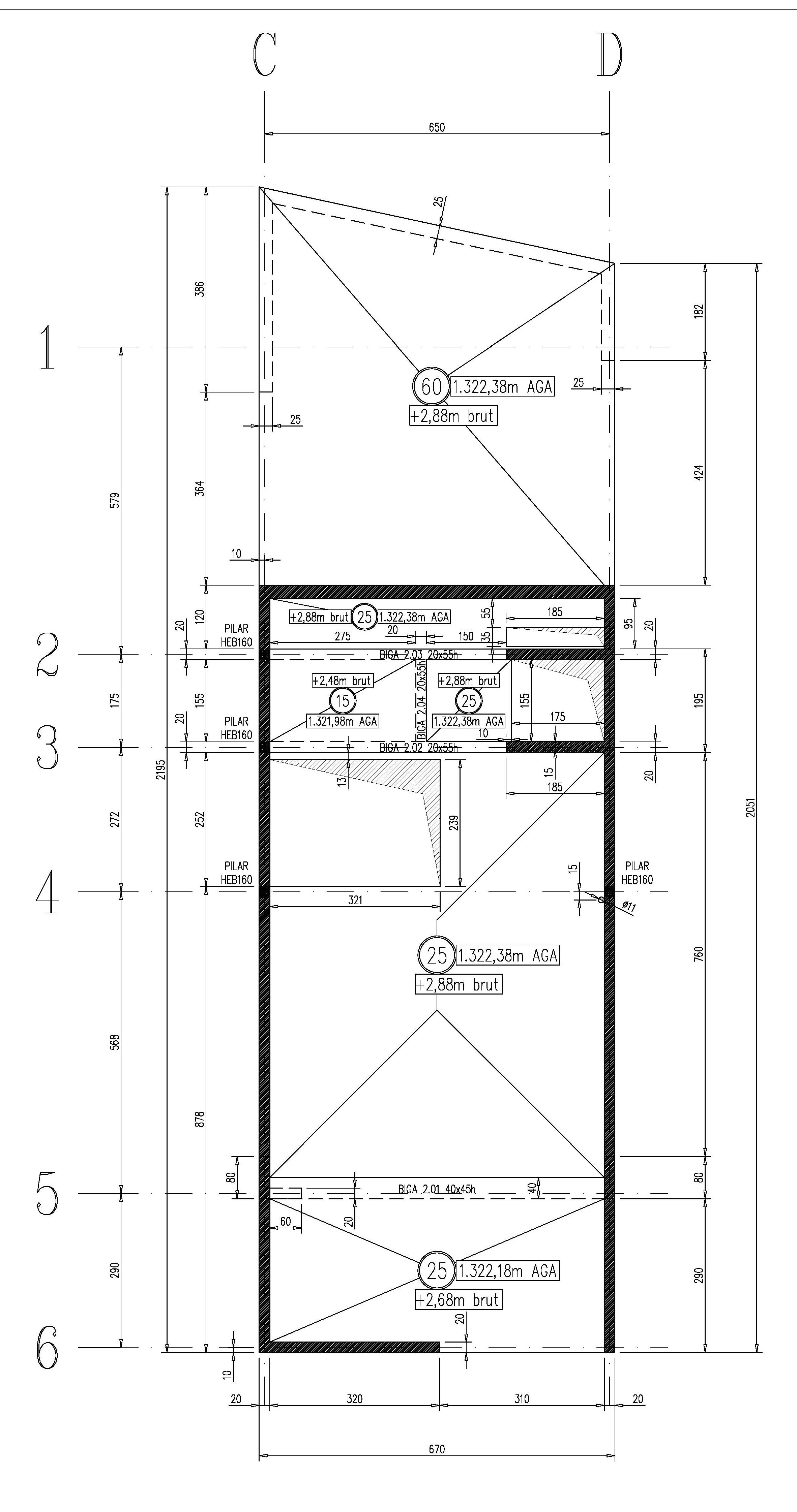
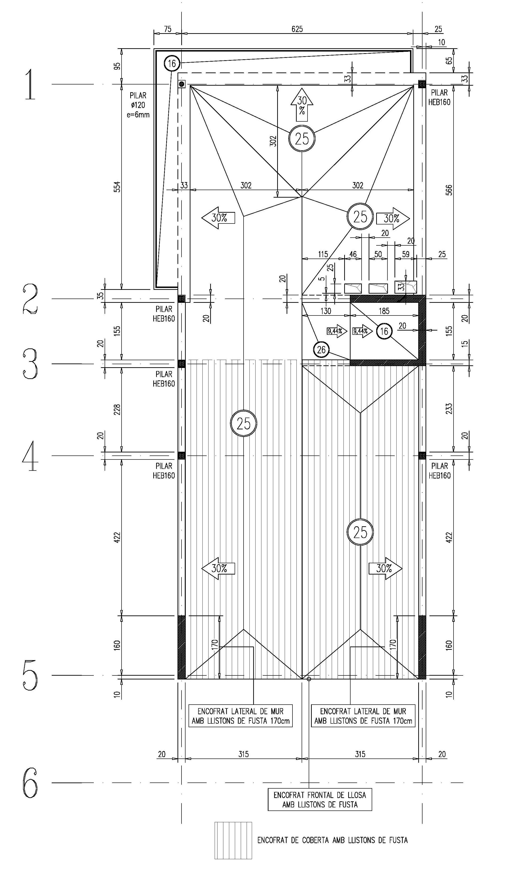
ESTRUCTURA
Superfície construida estructura: 2.372m2
Fonaments: llosa massissa de formigó
Estructura: formigó armat i pilars d'acer

