Y House
DADES
Ref: 03-155
Adreça: Els Vilars (Veure al mapa)
Localització : Escaldes-Engordany
EQUIP
Promotor: particular
Arquitectura: Xavier ORTEU RIBA
Estructura: GET BEAL DESCRIPCIÓ
Categoria: Habitatge unifamiliar
Any inici: 2003
Any final: 2007
Usos: Habitatge
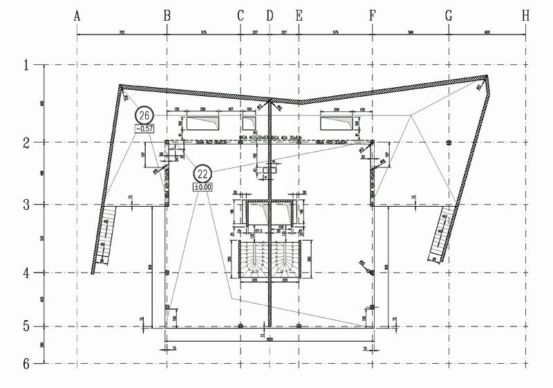
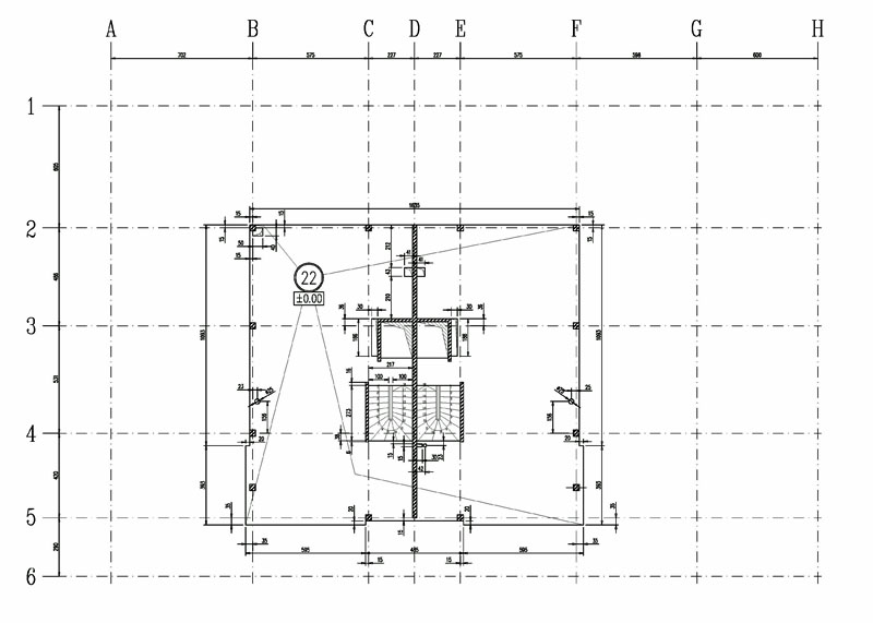
Alçades estructura: -2 / +3
ESTRUCTURA
Superfície construida estructura: 2.551m2
Fonaments: llosa massissa de formigó
Estructura: formigó armat

