Botigues Molines
DADES
Ref: 04-173
Locals comercials "Botigues Molines"
Adreça: Av. François Mittérand (Veure al mapa)
Localització : Escaldes-Engordany
EQUIP
Promotor: CASA MOLINES
Arquitectura: Xavier ORTEU RIBA
Estructura: GET BEAL DESCRIPCIÓ
Categoria: Comercial
Any inici: 2004
Any final: 2008
Usos: Comercial
Alçades estructura: +2
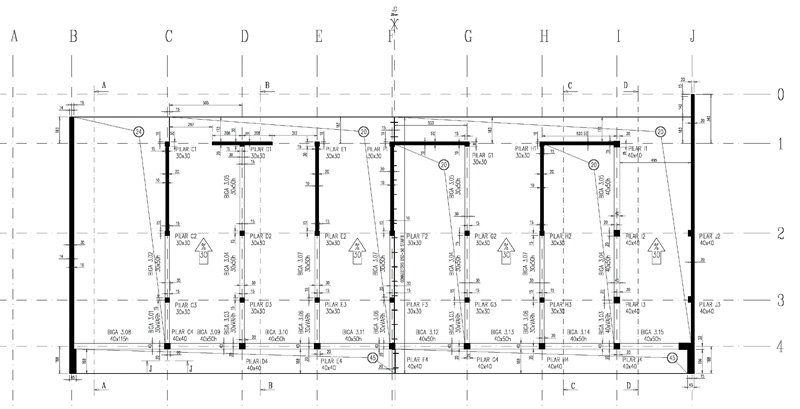
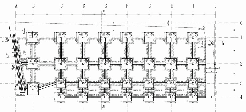
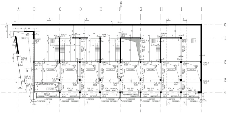
ESTRUCTURA
Superfície construida estructura: 2.072m2
Fonaments: superficials
Estructura: formigó armat i acer

