Jovial
DADES
Ref: 05-203
Habitatges socials Jovial
Adreça: C. de Terravella (Veure al mapa)
Localització : Andorra la Vella
EQUIP
Promotor: COMÚ D'ANDORRA LA VELLA
Arquitectura: Jordi BATLLE JORDANA
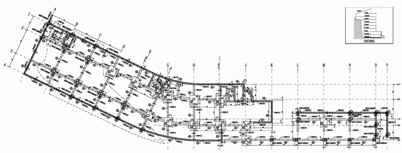
Estructura: GET BEAL DESCRIPCIÓ
Categoria: Habitatge plurifamiliar
Any inici: 2005
Any final: 2009
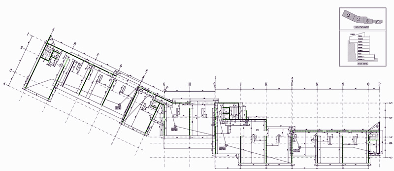
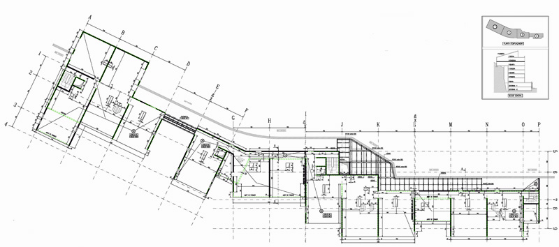
Usos: Aparcament i habitatges socials
Alçades estructura: -2 / +7
ESTRUCTURA
Superfície construida estructura: 11.277m2
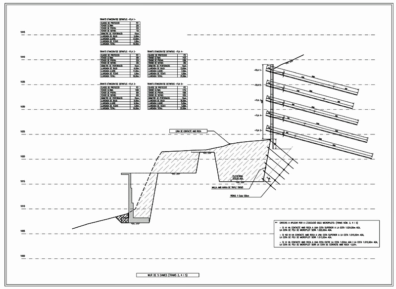
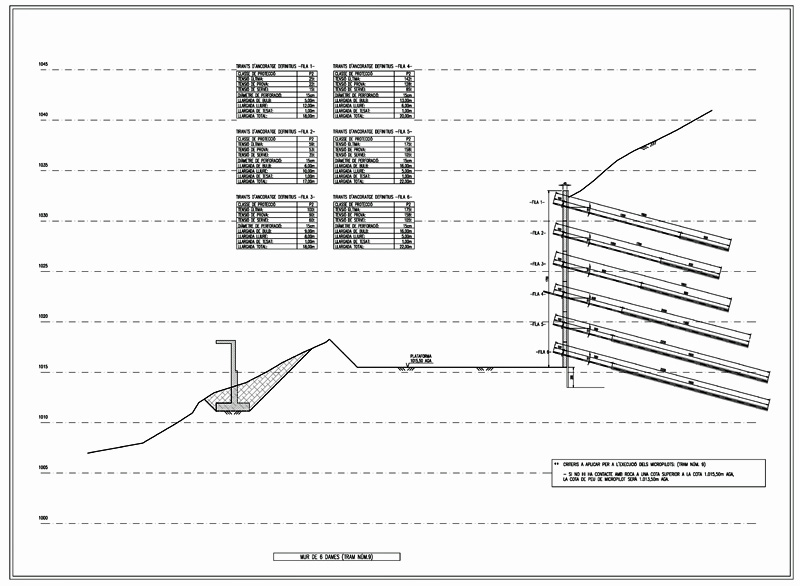
Sosteniment: mur de formigó ancorat contra pantalla de micropilots
Fonaments: mixtes superficials - profunds
Estructura: formigó armat i cobertes d'acer

