Casa de la Fulla
DADES
Ref: 06-225
Adreça: Pl. de la Germandat (Veure al mapa)
Localització : Sant Julià de Lòria
EQUIP
Promotor: REALTY, S.A.
Arquitectura: Elisabet FAURA PAVIA, Gerard VECIANA MEMBRADO
Estructura: GET BEAL DESCRIPCIÓ
Categoria: Habitatge plurifamiliar
Any inici: 2006
Any final: 2009
Usos: Aparcament, comercial i habitatges
Alçades estructura: -4 / +7
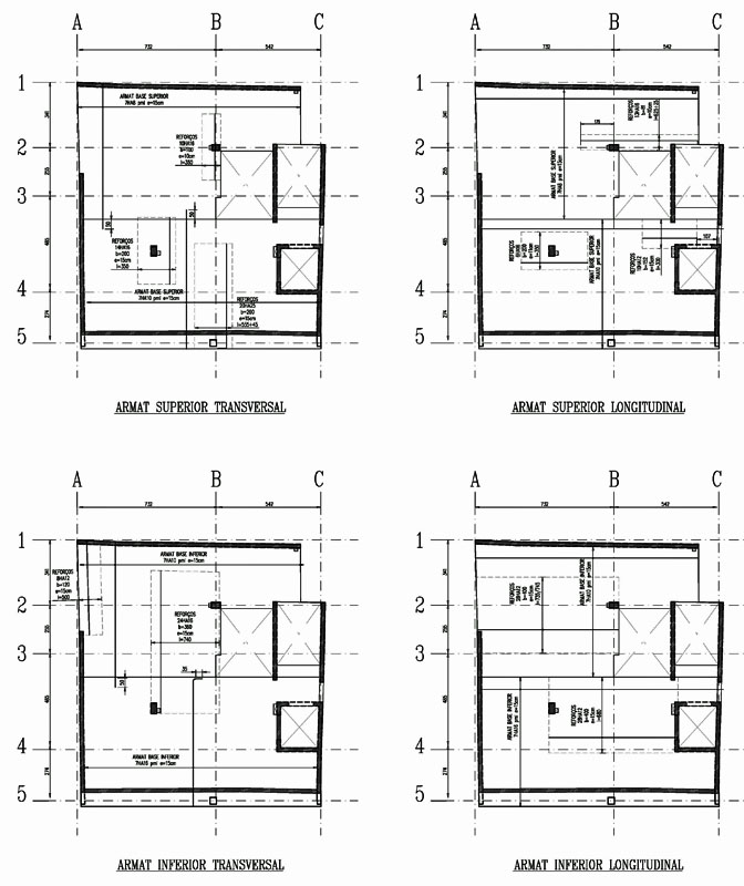
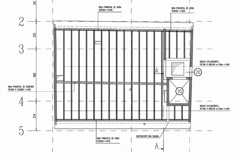
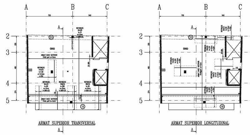
ESTRUCTURA
Superfície construida estructura: 1.882m2
Fonaments: llosa massissa de formigó
Estructura: formigó armat i acer

