Xalet Ponts-Estremeres
DADES
Ref: 06-242
Xalet urbanització Ponts i les Estremeres
Adreça: Aixirivall (Veure al mapa)
Localització : Sant Julià de Lòria
EQUIP
Promotor: particular
Arquitectura: Xavier ALEIX PALOU
Estructura: GET BEAL DESCRIPCIÓ
Categoria: Habitatge unifamiliar
Any inici: 2006
Any final: 2008
Usos: Habitatge
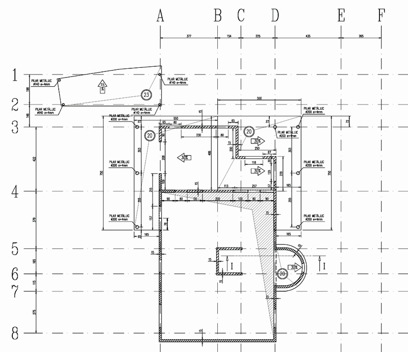
Alçades estructura: -1 / +2
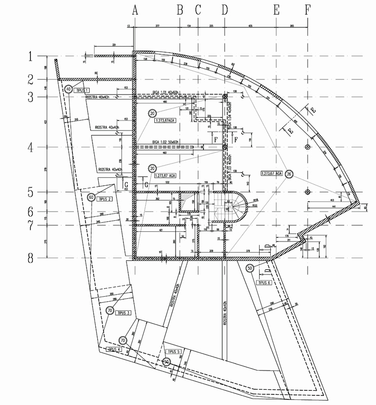
ESTRUCTURA
Superfície construida estructura: 1.041m2
Fonaments: superficials
Estructura: formigó armat

