Casa Alsaca
DADES
Ref: 07-251
Adreça: Placeta del Pui (Veure al mapa)
Localització : Canillo
EQUIP
Promotor: particular
Arquitectura: Jordi BATLLE JORDANA
Estructura: GET BEAL DESCRIPCIÓ
Categoria: Habitatge unifamiliar
Any inici: 2007
Any final: 2009
Usos: Habitatge
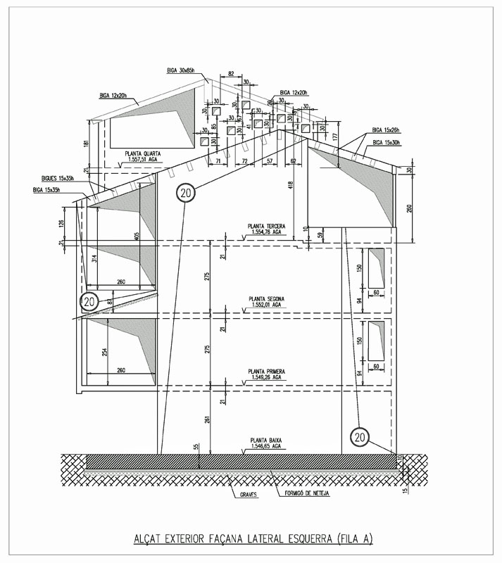
Alçades estructura: 0 / +5
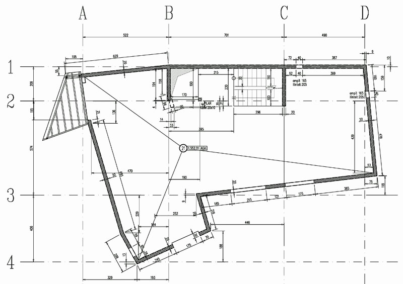
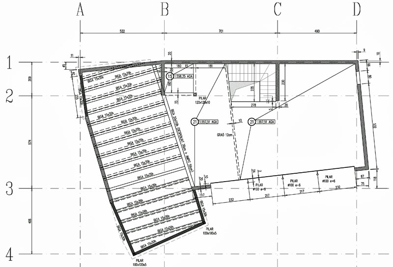
ESTRUCTURA
Superfície construida estructura: 840m2
Sosteniment: pantalla de micropilots
Fonaments: llosa massissa de formigó
Estructura: formigó armat, acer i fusta

