Xalet Els Oriosos
DADES
Ref: 10-330
Adreça: Els Oriosos, Anyós (Veure al mapa)
Localització : La Massana
EQUIP
Promotor: particular
Arquitectura: Xavier ALEIX PALOU
Estructura: GET BEAL DESCRIPCIÓ
Categoria: Habitatge unifamiliar
Any inici: 2010
Any final: 2011
Usos: Habitatge
Alçades estructura: 0 / +4
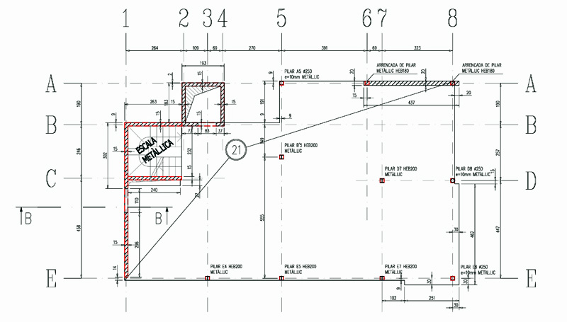
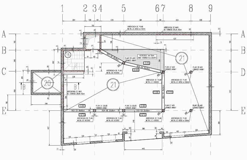
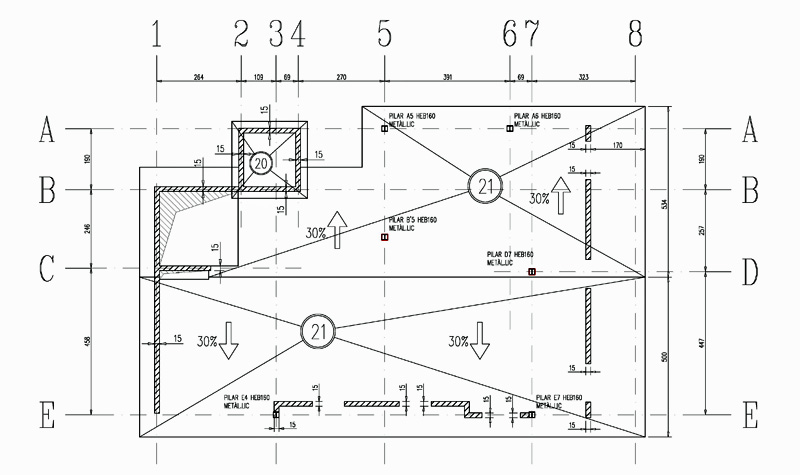
ESTRUCTURA
Superfície construida estructura: 839m2
Fonaments: llosa massissa de formigó
Estructura: formigó armat

