Hotel Roc de Caldes
DADES
Ref: 02-073
Ampliació de l'Hotel Roc de Caldes
Adreça: Ctra. d'Engolasters (Veure al mapa)
Localització : Escaldes-Engordany
EQUIP
Promotor: AS DE PIC, S.A.
Arquitectura: Víctor NAUDI ZAMORA, Jordi SALA MONPEL
Estructura: GET BEAL DESCRIPCIÓ
Categoria: Hotel
Any inici: 2002
Usos: Aparcament, hotel
Alçades estructura: 0 / +10
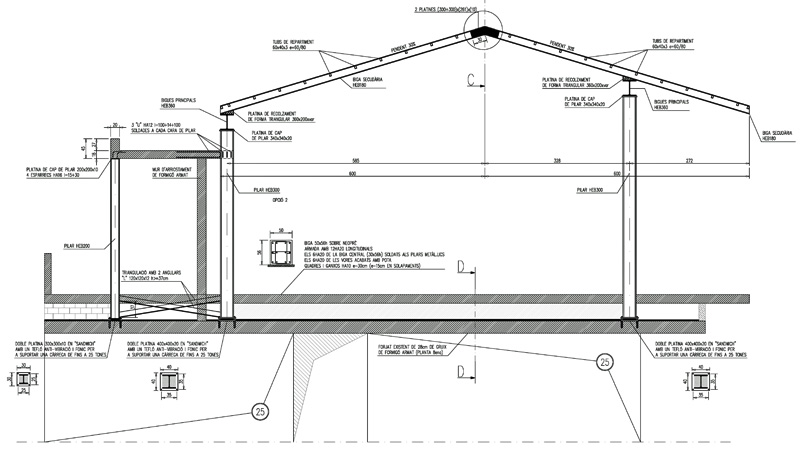
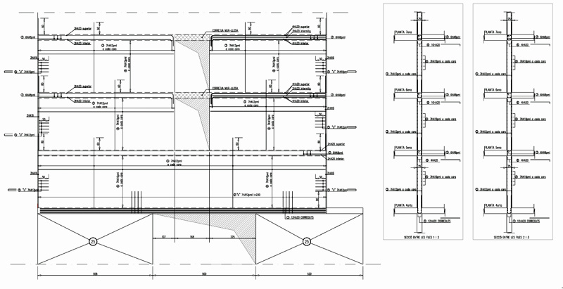
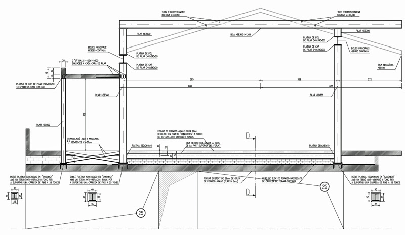
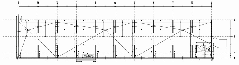
ESTRUCTURA
Superfície construida estructura: 22.310m2
Fonaments: superficials
Estructura: formigó armat i acer

