Prat del Roure
DADES
Ref: 04-179
Complex del Prat del Roure
Adreça: Clot d'Emprivat (Veure al mapa)
Localització : Escaldes-Engordany
EQUIP
Promotor: Comú d'Escaldes-Engordany
Arquitectura: Esther PASCAL RIERA
Estructura: GET BEAL DESCRIPCIÓ
Categoria: Equipaments públics
Any inici: 2004
Any final: 2007
Usos: Aparcament, esportiu, cultural, escola bressol
Alçades estructura: -2 / +4
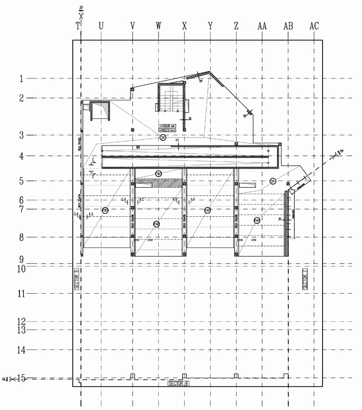
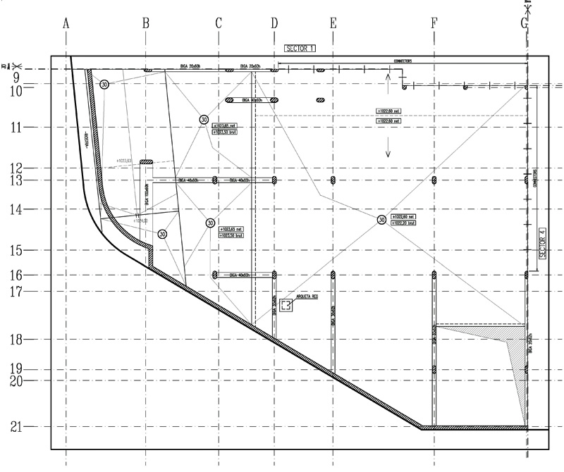
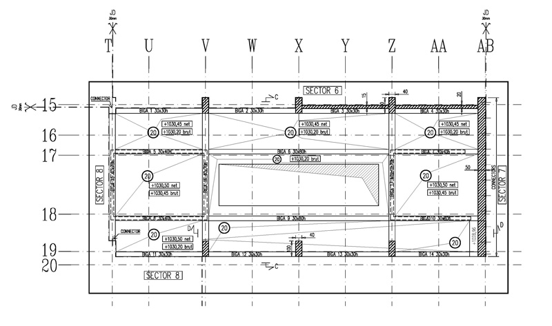
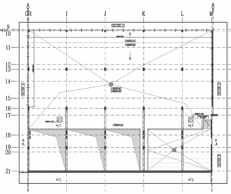
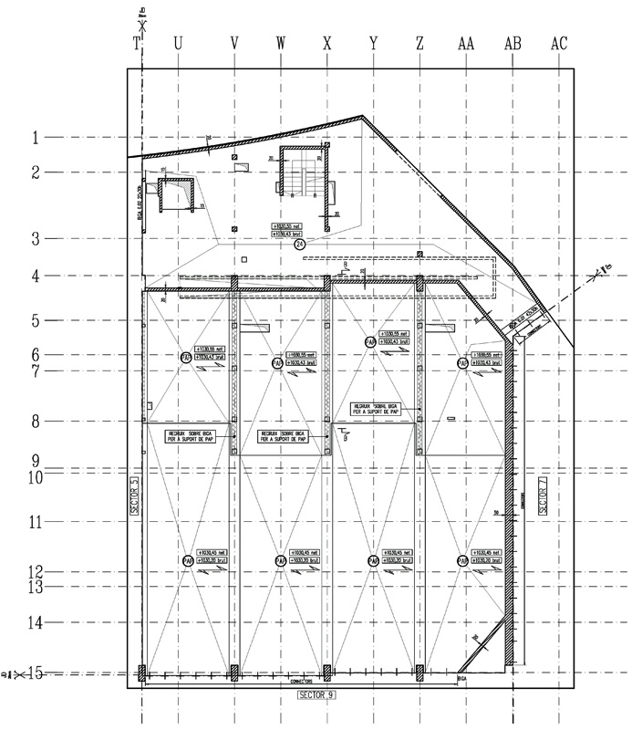
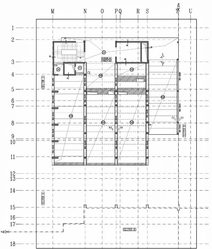
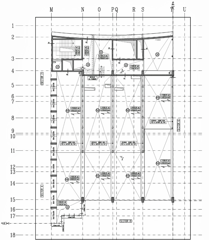
ESTRUCTURA
Superfície construida estructura: 15.629m2
Sosteniment: pantalles ancorades de jet grouting
Fonaments: llosa massissa de formigó sobre pilots de jet grouting
Estructura: formigó armat, formigó pretesat, acer

