Puiet
DADES
Ref: 01-076
Complex El Puiet - Centre de Congressos d'Ordino
Adreça: c. del Puiet (Veure al mapa)
Localització : Ordino
EQUIP
Promotor: Comú d'Ordino
Arquitectura: Elisabet FAURA PAVIA, Esther PASCAL RIERA, Gerard VECIANA MEMBRADO
Estructura: GET BEAL DESCRIPCIÓ
Categoria: Equipaments públics
Any inici: 2001
Any final: 2003
Usos: Aparcament, centre de congressos, escola bressol i habitatge
Alçades estructura: -2 / +2
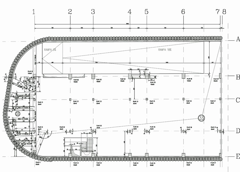
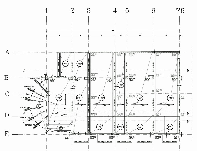
ESTRUCTURA
Superfície construida estructura: 9.654m2
Sosteniment: pantalles dobles de jet grouting ancorades per tirants provisionals
Fonaments: superficials
Estructura: formigó armat

