Andorra Park Hotel
DADES
Ref: 03-128
Ampliació i reforma Andorra Park Hotel
Adreça: carrer de les canals (Veure al mapa)
Localització : Andorra la Vella
EQUIP
Promotor: GUILLEMO S.A.
Arquitectura: Xavier GÜELL GUIX, Màrius QUINTANA CREUS
Estructura: Yves SERRA & GET BEAL DESCRIPCIÓ
Categoria: Hotel
Any inici: 2003
Any final: 2007
Usos: Hotel
Alçades estructura: 0 / +7
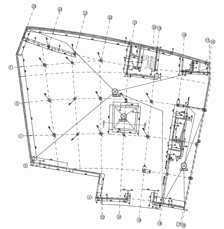
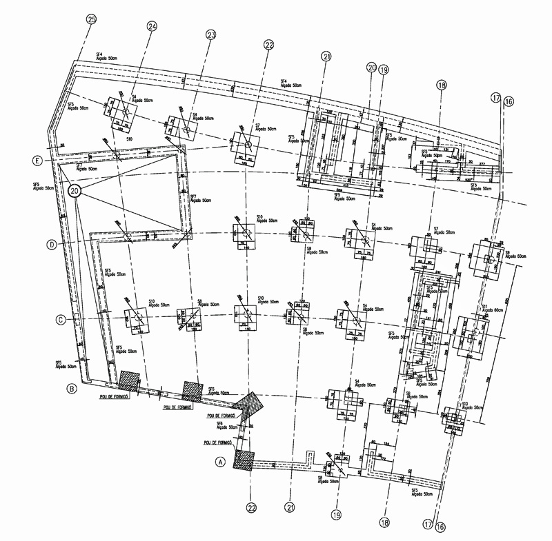
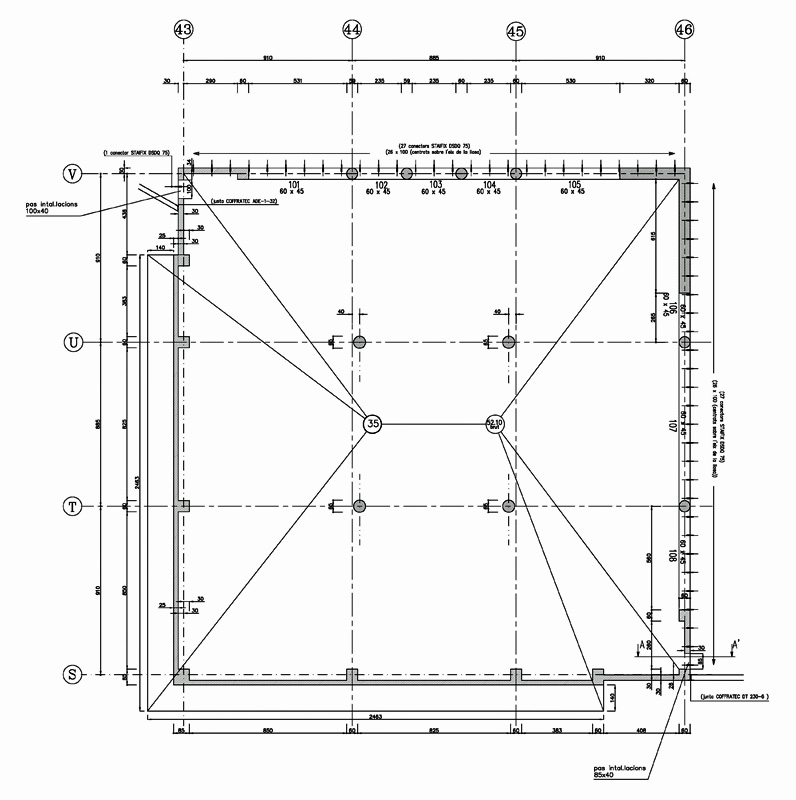
ESTRUCTURA
Superfície construida estructura: 19.685 m2
Fonaments: superficials
Estructura: formigó armat

