Serveis Andorra Telecom
DADES
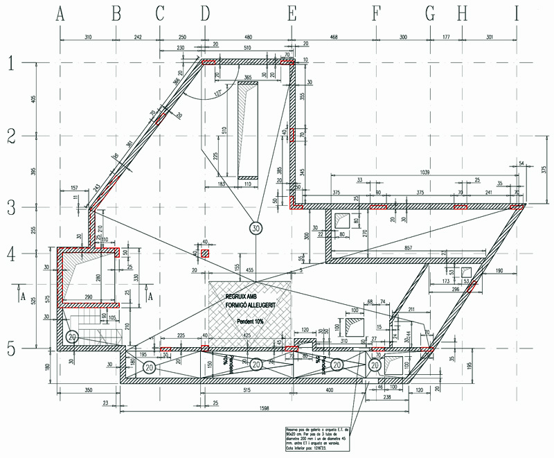
Ref: 07-249
Edifici de serveis d'Andorra Telecom
Adreça: C. de les Palanques (Veure al mapa)
Localització : La Massana
EQUIP
Promotor: ANDORRA TELECOM
Arquitectura: Albert VILLAMAYOR ROZADOS, Esther PASCAL RIERA
Estructura: GET BEAL DESCRIPCIÓ
Categoria: Equipaments públics
Any inici: 2007
Usos: Locals tècnics
Alçades estructura: -1 / +5
ESTRUCTURA
Superfície construida estructura: 1.460m2
Fonaments: superficials
Estructura: formigó armat

